Location
Residential Lot – Project Takeover Opportunity
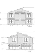
This residential lot offers a rare investment opportunity in one of the Metroplex’s most desirable home markets. The original structure has already been demolished, clearing the way for new vertical construction. All required permits have been successfully pulled, and the project includes a fully completed and architect-approved floor plan design.
The foundation has been professionally poured and includes completed plumbing lines, providing a true build-ready starting point for framing and vertical progression. This setup positions the next phase of construction for an efficient and well-structured build cycle.
A trusted builder—who has completed a nearly identical home design in the same market—is already prepared to move forward on the project. The same builder responsible for comparable new construction in the area is available to continue building from the existing floor plans, offering continuity, familiarity, and execution confidence for the investor taking over.
The property lies within a market experiencing strong luxury home demand, with new construction consistently performing at a high sales value. This location supports modern residential development with established neighborhood appeal and clear upward market positioning.
This is an ideal acquisition for investors seeking a low-stress construction project with planning, permits, and major pre-build infrastructure already completed.
This residential lot offers a rare investment opportunity in one of the Metroplex’s most desirable home markets. The original structure has already been demolished, clearing the way for new vertical construction. All required permits have been successfully pulled, and the project includes a fully completed and architect-approved floor plan design.
The foundation has been professionally poured and includes completed plumbing lines, providing a true build-ready starting point for framing and vertical progression. This setup positions the next phase of construction for an efficient and well-structured build cycle.
A trusted builder—who has completed a nearly identical home design in the same market—is already prepared to move forward on the project. The same builder responsible for comparable new construction in the area is available to continue building from the existing floor plans, offering continuity, familiarity, and execution confidence for the investor taking over.
The property lies within a market experiencing strong luxury home demand, with new construction consistently performing at a high sales value. This location supports modern residential development with established neighborhood appeal and clear upward market positioning.
This is an ideal acquisition for investors seeking a low-stress construction project with planning, permits, and major pre-build infrastructure already completed.
Property Details
Price:
$235,000
MLS #:
21121854
Status:
Active
Baths:
0
Type:
Land
Subtype:
Unimproved Land
Subdivision:
Heights Macarthur
Listed Date:
Dec 1, 2025
Lot Size:
4,878 sqft / 0.11 acres (approx)
Schools
School District:
Dallas ISD
Elementary School:
Carr
Middle School:
Edison
High School:
Pinkston
Interior
Exterior
Lot Size Area
0.1120
Financial

See this Listing
Aaron a full-service broker serving the Northern DFW Metroplex. Aaron has two decades of experience in the real estate industry working with buyers, sellers and renters.
More About AaronMortgage Calculator
Similar Listings Nearby
Community
- Address3343 Bataan Street Dallas TX
- SubdivisionHeights Macarthur
- CityDallas
- CountyDallas
- Zip Code75212
Subdivisions in Dallas
- .
- 0000000
- 1038 Kings Hwy Condo
- 1147 Madison Condo
- 1212 SOUTH RIVERFRONT
- 12500 Preston
- 1303 Dragon Street Condos
- 1505 Elm Street Condo
- 1505 Elm Street Condominiums
- 1505 Elm Street Condos
- 1510 Washington Townhomes PH I &II
- 1510 WASHINGTON TOWNHOMES PH I&II
- 1600 HASKELL CONDOMINIUMS
- 1818 Fitzhugh Condo
- 1910 Caddo Condos Bldg B
- 1920 CADDO CONDOMINIUMS
- 1DSG09
- 1DSJ27
- 2001 N Prairie Condominiums
- 2100n Fitzhugh Condos
- 2203 Moser Townhomes
- 2220 Canton Loft Condominiums
- 2509 Welborn Street Condos
- 2727 Shelby Condominium
- 2SP Village
- 31 Dallas Square #2
- 3131 McKinney
- 3170 Carmel Bldg 3170
- 3525 Condominiums
- 3525 Condos
- 3816 ROSELAND CONDOMINIUM
- 3816 San Jacinto Condo
- 3923 Cole Ave Condo
- 3923 COLE AVENUE CONDOMINIUMS
- 4044 Buena Vista Condos
- 4100 Wycliff Twnhms Add
- 4111 Cole Condos
- 4114 Wycliffconodminiums
- 4120 GILBERT AVENUE CONDO
- 4122 Travis Street Condo
- 4134 Travis Street Condos
- 4212 Bowser Ave
- 4222 ROSELAND CONDOMINIUM
- 4231-4233 Travis Ave Condo
- 4231-4233 Travis Avenue Condo
- 4242 Buena Vista Street Condo
- 431 E 8th St
- 4401 ROSELAND CONDO
- 4415 Munger Ave Condos
- 4434 Holland Ave
- 4502 Holland
- 4508 Bowser
- 4545 Bowser Ave
- 4616 West Lovers Lane Condos
- 4805 Manett Condos
- 4811
- 4DSD79
- 4th InstlPiedmont Add
- 5015 Manett Twnhms
- 509 Elm Place Residence Condo
- 5111 Manett Condos
- 5205 Capitol Condos
- 5608 Lindell Condo
- 5706 Lindell Ave
- 5711 Bryan Townhomes
- 5800 Royal Lane Condominiums
- 5800 Royal Lane Condos
- 5802 Lindell Condo
- 5807 Hudson Townhomes Condos
- 588 Condominiums
- 588 Condos
- 5907 Lindell Ave Condos
- 5963 ross ave condos
- 5DSD08
- 5TH & N EWING
- 6 Dallas City Bl 6416
- 6000 Hudson Street Condos Bldg
- 6060 at The Crossing
- 6521-6523 Del Norte Condos
- 7955
- 8119
- 8503
- 8510 Park Lane Place Condos
- 9th street
- A
- A A Heartsill Resub
- A C Ardreys
- A J Houston Sub
- A K Lucas Homestaed
- A L Lancaster
- A S Childers Griffith Ave
- A S LOCKHEAD BLK 5 1178 LTS 8 & 10
- A W Blair
- A W Grahams
- Acreage Estates
- Acreage Estates 2
- Adam Guinns Resub
- Adam Guinns Sub
- AIRLAWN HOMES
- Airlawn Homes Add
- Airway Construction
- Airway Construction Rev
- Aj Porters
- Akard-Gano Twnhms Add
- Alameda Heights
- Alameda Heights 02
- Alameda Heights Add
- Albrights
- Albrights North Henderson
- Alcachofa
- Alcott Fitzhugh Heights
- Alcott Fitzhugh Heights Add
- Alcotts Fitzhugh Heights Add
- Alex Clark Sub
- Alexan Fairmount Add
- Alexander Park
- Alexander Village
- Alexanders Park
- Alexanders Rev
- Alexanders Village
- Alexanders Village 01
- Alexanders Village Instl I
- Alger Park
- Alix Condominiums
- Allen Guy
- Almaden Condo
- Alta Mesa Park
- Alta Parc Central
- Alta Summit Twnhms
- Alta Summit Twnhms Condo
- Alta Vista
- Alta Vista Add
- ALTA VISTA BLK
- Alta Vista Estates
- alta vista west
- Alta Vista West Twnhms Condos
- Altadena Rev
- Alto Twnhms Hall
- Ambassador House Condos
- Amber Trails 02
- ANDERSON & GOODMAN
- Andover Hill 01
- Andover Meadows
- Anita Heights
- Ann Arbor
- Ann Arbor Gardens
- Anna E Johnson Addn
- Annex
- Annex Munger Condo
- ANNEX ON MUNGER CONDOMINIUM
- Antone
- Appel & Harper\’s
- Appel & Harpers City Bl 1493
- Apple Gate
- Apple Gate Two
- Arbor Court Condo
- Arbor Court Condominiums
- ARBOR RIDGE
- Arcadia Gardens
- Arcadia Park
- Arcadia Park Blk 23 8342
- Arden Terrace Rev
- Arlington Park Estates
- Arlington Park Estates 04
- Arlington Park Estates Sec 04
- Arlington Park Ests
- Arlington Pk Ests Sec 4
- Arrangement Condo
- ART HOUSE
- Arts District PPTIES MASTER CONDO
- Arts Residences
- Arts Residences Condo
- Ash Creek Add
- Ash Creek Estates
- Ashton South Condos
- ASTON
- Athena Condo
- ATLANTIC DOWNTOWN
- Avalon
- Avanti On Avondale Condo
- Avenue Heights
- Averill House
- Avondale Arbors
- Avondale Gardens
- Avondale Gardens Condos
- Azure
- Azure Condo
- B J Tillers
- Badgett & Roberts Add
- Bagleys
- Ballard Burghers
- Ballards Rev
- Barbara Heights
- Barbara Lambert Add
- Barkley Square
- Barkley Square 08
- Barnes & Mitchells Grand Ave
- Barrington Oaks At Turtle Creek
- Beacon Street Living Condo
- Beat At The South Side Station
- Beaulieu Condo
- Beaulieu Condo Bldg B
- Beauliew Condo
- Beckley Club
- Beckley Gardens Add
- Beckley Heights
- Beckley Heights Rev
- BECKLEY HEIGHTS REVISED
- Beckley View
- Beeman Estates
- Bel Air
- Bel Aire Estates 1
- Bel-Air
- Bel-Air On Turtle Creek
- Bella Gardens Condo
- Bella Gardens Condos
- Bellamy C E
- Belle Meadow Condo
- Bellevue
- Bellevue Add
- BELLEVUE LOT – 8
- Bellevue LOT – 9
- Belmead
- Belmont Henderson Twnhms 03
- Belmont Park
- Belmont Park Rev
- BELMONT REV
- Belmont Sub
- Belmont Suburban
- Belvedere
- Belvedere Condos
- Benjamin F Bethurum 320 Acre A
- Bennett Ave Add
- Bennett Place Add
- Benson Place
- Bent Trail Add Ph Four
- Bent Trail Add Ph One
- Bent Trail Add Ph Three
- Bent Trail Add Ph Two
- Bent Trail Twnhms
- Bent Trail Village
- Bent Tree
- Bent Tree 02 Rep
- Bent Tree 02 Rev
- Bent Tree Fairways Ph 01
- Bent Tree Fairways Ph 02
- Bent Tree Forest Condos
- BENT TREE FOREST DR. CONDOS
- Bent Tree Forest Drive Condos
- Bent Tree Gables
- Bent Tree Hills
- Bent Tree North
- Bent Tree North 2
- Bent Tree North 3
- Bent Tree North 4
- Bent Tree North 4 Sec Two
- Bent Tree Royal Ph 01
- Bent Tree Village 01 Rep
- Bent Tree Village 03
- Bent Tree West #1 Sec 2
- Bent Tree West 01
- Bent Tree West 4
- Bent Tree West 5
- Bent Tree West Duplex
- Bent Tree West Ph 2
- Bent Tree West Ph I
- Bentley Place
- Bently Court
- Bergfeld Place
- Berkshire
- Berkshire Add
- Bermuda
- Bermuda Lawn
- Best Products
- Betterton
- Betterton Circle
- Bettertons Springhill
- Beutel
- Beverly Hill
- Big Jumbo Plantations
- Big Oaks
- Big Thicket
- Biggs J E
- Biglot
- Bilger A W
- Bill Brownes Farm
- Birchbrook 01 Condo
- Birchbrook 02 Condo
- Birchbrook 02 Condos
- Birchbrook Condominiums
- BIRCHBROOK II CONDOMINIUM
- Bishop Arthur
- Bishop Arts
- BISHOP ARTS DISTRICT
- Bishop Arts Melba Homes Bldg 1
- BISHOP ARTS TENTH STREET CONDOMIN
- Bishop Ave Twnhms
- BISHOP AVENUE TOWNHOMES
- Bishop College Heights
- Bishop Heights
- Bishop Highline #3 Add Ph 2
- Blair Estates
- Blankenship & Blakes
- Blanton Estates
- Bleu Ciel
- BLEU CIEL CONDO
- BLK 15 6898
- BLK 3956
- BLK 5802 TR 15 ACS 2.2862
- BLK 5802 TR 20.2 ACS 0.0237 CAL C
- BLK 5993
- BLK 6016
- BLK 6509 SPLIT 2 ACS 2.68
- BLK 6873 TR 7 ACS 0.5105
- BLK 6874
- BLK 8311 TR 8.1 ACS
- BLK 8348
- BLK 8497
- BLK7070
- BLK8824 TR 3
- Block 737
- Block 8838
- BLOCK C SOUTH TOWER RESIDENCES
- BLOCK R MASTER CONDO
- Blue Bonnet Lawn Add 01 Instl
- Blue Ciel Condo
- Bluebonnet
- Bluebonnet Acres
- Bluebonnet Acres Add
- Bluebonnet Heights
- Bluebonnet Lawn
- Bluffdale
- Bluffs at Cochran Chapel
- Bluffs Cochran Chapel
- Bluffview Estates
- Boardwalk Condo
- Boardwalk On The Pkwy Condos
- Boardwalk Parkway Condos
- BOB O LINKS DOWNS
- Bob O Links Downs 6
- Bob O Links Estates
- Bob-O-Links Downs
- Bob-O-Links Downs 4
- Bogan
- Bogans
- Bohannon Sub 2
- Bois Du Chene
- Bois Du Chene Condos
- Bois Du Lac Condo
- Bois Du Lac Condos
- Boll S
- Bomars
- Bomars 02 University Place
- Bomars Grand Ave
- Bomars L H
- Bon Ton Heights
- Bon View Place
- Bonaventure Condo
- Bonaventure Condominiums
- Bonaventure Condos
- Bonds Annex
- Bonnie View Garden 02
- Bonnie View Gardens
- Bonton
- Booger Woods Add
- Bordeaux Village Condominum
- Bordeaux Village Condos
- Boulevard Terrace Rev
- Boulevard Terraceblk
- Bowaer & Lemmons Oak Lann & N
- Bowling Greenwood
- Bowser & Lemmons Oak Lawn
- Bowser & Lemmons Oak Lawn & #
- Bowser & Lemmons Oaklawn
- Bowser and Lemon
- Bowser Ave Condo
- Bowser Ave Condo 4112
- Bowser Condo 4115
- BOXTREE CONDOMINIUMS
- Boxtree Condominiums Association
- Boxtree Condos
- Bradford Estates
- Bradford Estates 5
- Braeburn Club 01
- Braeburn Glen
- Braeburn Glen Add 01
- Braemar North Condo
- Brairwood Estates
- BRAIRWOOD ESTS
- Branch of Live Oak Condos
- Brentfield Court
- Brentwood
- Briar Cliff
- Briar Creek Estates
- BRIAR RIDGE ESTATES
- Briarwood
- Briarwood 02 Instl Add
- Briarwood Add 2nd Instl
- Briarwood Estates
- Briarwood Estates Sec 1
- Brierwood Heights Ph 01
- Brierwood Heights Ph 02
- Briggs
- Briggs Park Add
- Briggs Sub
- Brighton Lofts South Condo
- Brightside
- Brightside Add
- Bristle Cone Twnhs Condos
- Britty Condo
- Broadmoor
- Broadview Add
- Bronx Park
- BRONX PARK ANNEX
- Brook Mays
- Brookdale
- Brookfield
- Brookfield Add
- Brookgreen Add
- Brookgreen Add Rev
- Brookgreen Twnhs 01
- Brookgreen Twnhs 02
- Brookgreen Twnhs 03
- Brookshire Park
- Brookshire Park 02
- Brookshire Park 05
- Brookshire Park 6th Section
- Brookshire Park Sec 01
- Brookshire Park Sec 03
- Brookside Add
- Brookside Annex
- Brookside Village MHP
- Brookview Add
- Browders
- Browders Providence Add
- Brown L G
- Browns
- Brownstone At Reagan Condo
- Brownwood
- Brownwood Park
- Brownwood Park Add
- Bruton & Harper Add
- Bruton Lake
- Bruton Lakes Add
- Bruton Ridge Estates
- Bruton Ter Add #2
- Bruton Terrace
- Bruton Terrace 09 Instl
- Bruton Terrace 18
- Bryan George J Rev
- Bryan Heights
- Bryan Place
- Bryan Place 03 Ph 04-Jg Moore Co 01
- Bryan Place Condo
- Bryan Place Condos Bldg B
- Bryan Place Ph 02 Rev
- Bryan Place Ph 03
- Bryan Place Ph 04
- Bryan Place Ph 04 Sec 01
- Bryan Place Ph 05
- Bryan Place Ph 05 Sec 01 & 02
- Bryan Place Ph 06
- Bryan Place Ph 07 Sec 03
- Bryan Place Ph 08 Sec 01
- Bryan Place Ph 08 Sec 02 Rep
- Bryan Place Ph 08 Sec 04
- Bryan Place Rev 02
- Bryan Square Twnhms
- Bryan Street Station Condo
- BRYAN STREET STATION CONDOMINIUMS
- Bryan Street Station Condos
- Buckener Terrace 2nd Inst. 4 Sec
- Buckner
- Buckner Estates
- Buckner Heights
- Buckner Indust District 2
- Buckner Park
- BUCKNER PARK INDUSTRIAL DISTRICT
- Buckner Terrace
- Buckner Terrace 03 Sec 03 Inst
- Buckner Terrace 04 Sec 03 Inst
- Buckner Terrace 05 Sec 03 Inst
- Buckner Terrace 06 Sec 03 Inst
- Buckner Terrace 07 Sec 03 Inst
- Buckner Terrace 08 Sec 03 Inst
- Buckner Terrace 1st Sec 3rd Inst
- Buckner Terrace 2nd
- BUCKNER TERRACE 2ND SEC 1ST INST
- Buckner Terrace 2nd Sec 3rd Inst
- Buckner Terrace Add 01 Instl 01sec
- Buckner Terrace Add 08 Sec 03
- Buckner Terrace Add Second Sec
- Buena Vista
- Buena Vista Condo 4044
- Buena Vista Condo 4402
- Buena Vista Street Condo 4241
- Buena Vista Street Condos
- Buena Vista Villa Condo
- Buena Vista Villa Condos
- Burgess W N
- Burgundy Condo
- Burgundy Conods
- Burk & Slaughter Rev
- Buzz Condo
- Buzz Condos
- C P Nevill 02
- C P Nevill Add
- C W Guilds Park Ave
- Ca Londenberg Sub
- CABELL ELK TWO
- Caddo Corner #2
- Caddo Corner Condo
- Caddo Park Condo Bldg 1717
- Caddo Washington
- Caldwell Lakes
- Caldwell Rd
- Caldwells R D
- Calvin
- Cambrick Place Condo
- Cambrick Square South Condos
- Cambridge Condo
- Cambridge Condo Ph 01 03
- Cambridge Condo Ph 03
- CAMBRIDGE CONDOS
- Cambridge Condos Ph 01 03
- Cambridge Place At Preston Tr Ph 02
- Cambridge Place At Preston Trail
- Campbell Road Condos
- Camps Alex
- Camps T L
- Candelario Aguilar
- Canterbury Crossing Ph 01-08
- Canterbury Crossing PH I-VIII
- Canterbury Crossing PH-I-VIII
- Canterbury Xing Condos Bldg K
- Canton Loft 2220
- Capella Park
- Capella Park 01 Amd
- Capella Park Ph 01
- Capella Park Ph 1
- Caribou Estates
- Carlisle Preston Add
- Carondelet Condo
- Carreras Townhomes Condominiums
- Carreras Twnhms Condos
- Carriage Park Condos
- Carriage Place Condo On Marquita
- Carriage Square
- Carriage Square Duplex
- Carroll & Willow
- Carroll Ave Heights
- Carter Square 01
- Carter Square 03
- Caruth Court 02
- Caruth Court 3rd Rep
- Caruth Hills
- Caruth Hills 04
- Caruth Hills 05
- Caruth Hills 06
- Caruth Hills 07
- Caruth Hills 10
- CARUTH HILLS 7
- Caruth Hills Add #10
- Caruth Hills Add 08
- Caruth Hills Add 10
- Caruth Homeplace
- Caruth Homeplace 05
- Caruth Meadows
- Caruth Place
- Caruth Raymond
- Caruth Terrace
- Caruth Terrace 02
- Caruth Terrace 03
- Caruth Terrace 06
- caruth terrace 2
- Caruth Village
- Caruth Village Ph 02
- Carver Heights
- Carver Heights 02
- Casa Blanca Condo
- Casa Linda Estates
- CASA LINDA ESTATES REV
- Casa Linda Forest
- Casa Linda Highlands
- Casa Linda Park 02
- Casa Loma Estates Rep
- Casa Terrace
- Casa Vale
- Casa View Heights
- Casa View Heights 05 Instl
- Casa View Heights 08
- Casa View Heights 09
- Casa View Heights 10
- Casa View Heights 11
- Casa View Heights 14
- Casa View Heights Add 01 Instl
- Casa View Heights Add 04 Instl
- Casa View Heights Add 09 Instl
- Casa View Hills
- Casa View Hills Rev
- Casa View Hwights No 14
- Casa View Oaks 01
- Casa View Oaks 04 Rev
- Casa View Oaks 05
- Casa View Oaks 06
- Casa View Oaks 08
- Casa View Oaks 8
- Casa Views Hills Add
- Ce Johnson
- Cedar Branch Twnhm Add
- Cedar Cliff
- Cedar Creast
- Cedar Creek Ranch Ph 01
- Cedar Crest
- Cedar Crest Boulevard
- Cedar Crest Bus Center
- Cedar Crest Country Club Estates
- Cedar Crest Country Club Ests
- Cedar Crest Heights
- Cedar Crest Heights Add
- Cedar Crest Heights Rev
- Cedar Crest Rev
- CEDAR CREST VILLAGE
- Cedar Crest Village 04
- Cedar Crest Village 05
- Cedar Crk Ranch Ph 01
- Cedar Crk Ranch Ph 02
- Cedar Dale
- Cedar Heights Acreage
- Cedar Oaks
- Cedar Ridge Add
- Cedar Ridge Sec 02
- Cedar Run Ph 02
- Cedar Spg Place
- Cedar Spgs 2011
- Cedar Spgs Heights
- Cedar Springs Heights
- Cedar View Estates
- Cedardale
- Cedars
- Cedars Twnhms Add
- Centerville Terrace
- Centerville Terrace 2nd Sec
- Centerville Terrace Add Sec 02
- Central Ave
- Central Ave 4th Add
- Central Ave Add #2
- Central Ave.
- CENTRAL AVENUE 3
- Central Avenue Add – #1
- Central Avenue Add #3
- Central Finance Corp Su
- Central Park
- Central Park Condo
- Central Park Condominiums
- Central Park North
- Central Park North 2nd Sec
- CENTRE LIVING AT KINGS HWY CONDOS
- Centre Living at Lakewood
- Centre Living Homes
- Centrum Condo
- CESCO REV
- Chambers Corner
- Chapel Downs 1st Sec
- Chapel Downs 3rd Sec
- Chapel Downs Sec 02
- Chapel Downs Sec 04
- Chapel Downs Sec 05
- Chapel Forest
- CHAPEL VALLEY #2
- Chapel Vly 2
- Chariot Village
- Charles Landing
- Charleston Square Condo
- Chateau Blois
- Chenault
- Cherrywood
- Cherrywood 03
- Chesterfield Heights
- Chestnut Hill
- Chiminey Lane Patio Homes Ist
- Chimney 06 Condominiums
- Chimney Hill 03 Inst
- Chimney Hill 04 Instl
- Chimney Hill 1st Inst
- Chimney Hill 2nd Inst
- Chimney Hill 4th Inst
- Chimney Hill 4th Instl
- Chimney Six
- Christian Heights
- Churchhill Downs
- Churchill Downs
- Churchill Downs Add
- Churchill Pointe
- Churchill Tower
- Cimarron Court Condo Ph 1
- Cimarron Court Condo Phase 1
- Cimmaron
- Cimmaron 02
- Cimmaron Ridge 01
- Citta Twnhms Condo Bldg 11
- Citta Twnhms Condos
- Citta Twnhms Ph 01 & 02
- Citta Urban Townhomes
- City
- City Bl 4340
- City Bl 4456
- City Bl 6990
- City Bl 737
- City Bl 8776
- City Bl 8824
- City Bl 987
- City Blocks
- City Dallas
- City Dallas Add Bl 771
- City Dallas Tr 1 3 67
- City Dev Companys Sub
- City North
- City North Townhomes
- City View
- City View Rev
- City Walk At Akard Condo
- City-Dallas
- City-Dallas Tr 6
- CityDallas
- Cityscape Plaza Twnhms
- Cityscape Plaza Twnhms Condo B
- Cityville #3
- Cityville #5
- Cityville 1
- Cityville 2
- Cityville 3
- Claremont 01 Inst
- Claremont 02 Inst
- Claremont 03 Inst
- Claremont 04 Installment
- Claremont 05 Inst
- Claremont 05 Installment
- Claremont Add 06 Instl
- Claremont Add First Instl
- Claremont Park 01
- Claremont Park 02
- Claremont Park Add 02
- Clarendon Hills Add
- Clark Gladys H
- Clark Ridge 02
- Classic Estates
- Claymore Park Condos
- Clearview Park 01
- Clearview Park 03
- Clearview Park 04
- Clearview Park Add First Instl
- Cliff Creek Crossing Add
- Cliff Heights
- Cliff Heights Add
- cliff park
- Cliffbrook Condos
- Cliffs Condo
- Cliffwood
- Clifton Place
- Clifton Place #2
- Clifton Place 02
- Clifton Place Add 01
- Clifton Place Add 02
- Clifton Place No 2
- Cloisters Condo
- Close In
- Clover Blossom Farms
- Cloverdale 01
- Cloverdale 02
- Cloverdale 02 Rev
- Cloverdale 03
- Cloverdale 05
- Cloverdale 05 Rev
- Cloverdale 06
- Cloverdale Add Sec 7 Rev
- Club Oaks 02
- Club Oaks 03
- Club Oaks Estates
- Club Oaks Instl Add 02
- CO-DALLAS
- Cobblestone Square
- Cochran Chapel Circle Add
- Cochran Heights
- Cochran Heights 02
- Cochran Heights Add
- Cochran Heights Rev
- Cochran Hollow
- Cochran W P
- COCKRELL FAIRLAND
- Cockrell Fairland Rev
- Cofer At Kessler Park
- Cole Ave Condo 3919
- Cole Ave Condo 4125
- Cole Homestead Place
- COLE HOUSE CONDOMINIUM
- Cole Park
- Cole Park Condo
- Coleman Wofford
- Coleridge Condo
- Coles G N
- Coles Vinyard Add
- College Hill
- College Hill Add
- College Park
- College Park 1st Inst
- COLLEGE PARK 3RD & REV 2ND INST
- College Park Annex
- College Park Riggins
- College Terrace Ph 02
- Collins Oak Lawn Place
- Colonade At Turtle Creek Condo
- Colonial
- Colonial Hill
- Colonial Terrace
- Colony Ridge
- Colony Square Condo
- Columbia Ave
- Columbia Place
- Columbia Place Add
- Colvin Court Add
- Combs N A Rev
- Commerce Heights
- Compound Condo
- Concord House Condo
- Condo
- Condo 3525
- Condo Country Creek
- Condo Fontainbleau
- Copperfield Add
- Copperfield Condo Ph 03
- Copperfield Condos Ph 01 02
- Copperfield Homes
- Copperrun Condos Ph 01
- Coral Hills
- Coral Hills Add
- Corinth
- Corinth Heights
- Coronado Court
- Coronado Hills
- Coronado Hills 2
- Coronado Townhome
- Corrigan Gardens
- Corwins
- Coterie
- COTERIE2
- Country Brook #1
- Country Brook Sec Four
- Country Brook Sec One
- Country Club Estates
- Country Club Manor
- Country Club Manor 02
- Country Club Park
- Country Club Park 01
- Country Club Park 02
- Country Club Park 03
- Country Club Park Add 01 Instl
- country club Pk 2nd
- Country Condos Creek
- Country Creek
- Country Creek Condos
- Country Forest Ph 01 Rev
- Country Forest Ph 02
- Court Estates
- Courts of Bent Tree
- Courts Of Walnut Hill
- Courts Twnhs
- Courts Walnut Hill Add
- Courtyard Condo
- Courtyard Condos
- Cox C R
- Coxon Will
- Crawford Park
- Crawford Park Terrace
- Crawford Park Terrace Rev
- Creek Bend Condominiums
- Creek Condos
- Creekbend condo 01-06
- Creekbend Condo Ph 01-06
- CREEKBEND CONDOMINIUMS PH I-VI
- Creekbend Condos
- Creekbend Condos Ph I-Vi
- Creekbend Twnhms
- Creekbend Twnhms Add Ph I
- Creeks Of Preston Hollow
- Creekside
- Creekside At Carter Square
- Crespi Estates
- Crest Haven Place
- CREST MEADOW
- Crest Meadow Estates
- Crest View Park
- Cresta Blanca
- Cresthaven Place Add
- Crestline Meadow Estates
- CrestManor Estate
- Crestmanor Estates
- Crestview East 01
- Crestview East 02
- Crestview East 03
- Crestway Forest Estates
- Cripple Creek Woodland
- Crowdus & Akard
- CULLEY
- Cullums J D
- Curry
- D L Dickerman
- D Rowans Add
- D Rowens
- Dal Cliff Terrace
- Dallas
- Dallas Bias Add
- DALLAS BIAS ADDN
- Dallas Bl 8278
- Dallas Cedar Oaks
- DALLAS GLEN OAKS
- Dallas Land & Loan
- Dallas Land & Loan 02
- Dallas Land & Loan 03
- Dallas Land & Loan Companys 02
- Dallas Land & Loan Companys 3
- dallas land and loan
- Dallas Land and Loan 2
- DALLAS LAND AND LOAN 3
- DALLAS NORTH OAK CLIFF
- Dallas Park
- Dallas Park Add
- Dallas Project 01 East
- Dallas Project 01 West
- Dallas Projoect 01 West
- DALLAS STYRON & GREENS
- Dalview Estates
- Dalview Summit
- Danbury Condo
- Daniels L O Jr
- Dannellys Summit Hill
- Dannellys Summit Hill Add
- Dathes
- Davenport Meadows Add Ph 2
- Davenport Meadows Add Ph 3
- David Crockett Elem School
- Davilla Drive Estates
- Davis
- Day Estates
- deer path village
- Deer Path Village 5
- Deere Park
- Deere Park Add
- Deerpath Village 02
- Deerpath Village 03
- Deerpath Village 04
- Deerpath Village 05
- Deerpath Village 06
- Delaney Court
- Delano Place
- Delmar Heights
- Delmar Heights Add
- Demaggio Joe
- Dentwood Add #2
- Dewberrys
- Dewberrys Add
- Dewberrys Add Bl 02 7675
- Diamond Head Condos
- Diane Cheatham-Correction
- Dickermans P L
- Dicksons
- Dicksons East Dallas
- Dicksons East Dallas Add
- Dilbeck Court
- Doerrings W C
- Dolphin Heights
- Donnell Sub
- Donnells
- Douglas Condo 8181
- Dover Heights Add
- dowdy ferry road
- Downs of Hillcrest
- Downtown Dallas
- Dr M F Websters
- Drexel Park Hollow Condos
- Drexel Park Hollow Condos Bldg 6
- Drexel Park Hollow Condos PH1
- Drexler
- Drive John H Deans Add
- Druid Hills
- Druid Hills 02
- Druid Hills 04
- Druid Hills Add
- Dukes J C
- Dunbar Park
- Dunbar Park Add
- Duncan
- Dutch Creek Condos
- Dwellings At Haskell Condo
- E
- E H Rays
- E M Thomas
- Eagle Ford 02 Ph 02
- Eagle Ford Gardens
- Eagle Ford Plaza 02
- EAGLE POINT
- Eagles Condos Bldg A
- East Cliff Sec 02
- East Columbia Place
- East Columbia Place Add
- East Dallas
- East Hampton
- East Hampton Hills
- East Inwood Estates
- East Kessler
- East Kessler 05
- East Kessler Park 1st Inst
- East side 184.5fr fitzhugh
- East Side Acres
- East Side Add
- East Side Lofts
- East Side Prairie Add
- East We Go
- East-O-Kiest Park
- Easterview
- Eastfield Meadow
- EASTON CONDOMINIUMS
- Easton-Henderson
- Eastridge 03 Twnhms
- Eastridge Park
- Eastridge Park Add
- Eastridge Terrace Condo
- Eastridge Twnhms Ph 01
- Eastridge Twnhms Ph 02
- Eastside
- Eastside Add
- Eastside On Lindell Condo Ph 01
- Eastside On Lindell Condo Ph 02
- Eastwood 01
- Eastwood 02
- Eastwood 04
- Eastwood Estates
- Eastwood Estates 3
- Eastwood Estates Add 02
- Eastwood No 1
- Eastwood Park
- Edar Branch Twnhm Add
- EDGEFIELD
- Edgefield Annex
- Edgefield Heights
- Edgefield Hights
- Edgemere On The Parkway
- Edgemont
- Edgemont 03
- Edgemont 04
- Edgemont 3rd Instl Bl 3583-22
- Edgemont Park
- Edgewood
- EDGEWOOD PLACE
- Edith Court
- ehrays
- Eko Park Add
- El Camino Condos
- El Camino Real
- El Camino Real Condo
- El Molino
- El Parado
- El Tivoli Place
- Elaines Kitchen
- ELAM
- Elberta
- Elderwoods Townhomes
- Element Towers West
- Elite
- Elizabeth Square Condos
- Elk Hill
- Elk Hill Condo
- Elkins Forrest
- Ella Rose Thatcher
- Ellington Farms Ph 1
- Ellington Park
- Ellington Woods
- Elm Place Residences
- Elm Street Condo 1505
- ELMDALE
- Elmolino
- Elmspring Add
- Elmwood
- Elmwood 02
- Elmwood Add
- Elmwood Add 01 Instl
- Elmwood Add 03
- ELMWOOD ADD NO 4
- Embry Jesse
- Emerald Isle Add
- Emily Lane Condo
- Emory Park
- Empire Ph 01 & 02
- Enchanted Villas
- Encino Hills
- Encino Hills Ph 01
- Enclave At Ash Creek
- Enclave At Grove Hill
- Enclave At Grove Hill 02
- Enclave At Grove Hill 03
- Enclave at Lake Highlands
- Enclave at Vanguard Way
- Enclave at White Rock
- Enclave At White Rock Ph 02
- Enclave At Wooded Creek
- Enclave Lk Hlnds Tc 2
- Enclave Vanguard Way
- Enclave Villas on Forney Road
- Enclave Wyrick Estates
- Enclave-Grove Hill
- EnclaveLk Hlnds Tc
- EnclaveLk Hlnds Tc2
- Energy Lane Add
- English Place
- Entrusca
- Episcopal
- Equitable Bank
- Ervay Cedars
- Ervay Cedars Bl 9-2532
- Ervay Place
- Ervay Place Add
- Ervay Street Heights
- Ervay Street Heights Add
- Ervay Terrace
- Esplanade
- Esplanade Condominiums
- Estates At Grady Niblo Ph 01
- Estates Grady Niblo Ph 3
- Estates of Grady Niblo Ph 2
- Eubanks B A
- Eudora Estates 2
- Eudora Estates 3
- Evelyn Heights
- Evelyn Lavelle Heights
- Everglade
- Everglade Park
- Everglade Park 03
- Everglade Park 04
- Everglade Park 08
- Everglade Park 5th Sec
- Everglade Pk #9
- EVERGREEN ACRES
- EVERGREEN HILLS
- Evergreen Meadows
- everwood apartments
- Exall Twnhms
- Exall Twnhms II
- Exposition Park
- F P Wilson North Dallas Add
- F R Wilsons North Dallas Add
- Fair Ground Heights
- Fair Oaks
- Fair Oaks Condo 7030
- Fair Oaks Manor
- Fair Oaks Twnhms Ph 01
- Fairland
- Fairland Anx Add
- Fairmont Mews
- Fairway Estates
- Fakes Park Place
- Farmers Market Townhome 02
- Farmers Market Twnhm Add 02
- Farmers Market Twnhms Condos
- Feltons
- Feltons Geo E
- Feltons John B
- Fenbys
- Fentons
- Ferguson Heights 03 Rev
- Ferguson Heights 03 Sec 02
- FERGUSON HIGHLANDS
- Ferguson Village
- Ferris Creek Manor
- FIELD & STEELE
- Field & Steeles Add
- Fifth Sec Brookshire Park
- Fifty Seven Hundred Royal
- Firestation 4317 Condo
- First Instl Lakeland Hills Rep
- Fisher & Fishers
- Fisher Road Heights
- Fisher Road Heights 03
- Fisher Road Heights Add 01 Instl
- Fisk Add
- Five Mile
- Flair South
- Flora Street Twnhms #1 Cb 2594
- Flora Street Twnhms 02
- Flora Street Twnhms 1
- Flowers
- FLOWERS BLK C7790
- Floyd Coles
- Fonville
- Fordham Heights
- Foremans
- Foresite 04
- Foresite 06
- Forest Crown
- Forest Dale Gardens
- Forest Glen Add 3rd Sec
- Forest Glen Sec 01
- Forest Glen Sec 02
- Forest Glen Sec 03
- Forest Glen Sec 04
- Forest Glen Sec 05
- Forest Grove
- Forest Grove 06
- Forest Grove 07
- Forest Grove 08
- Forest Heights 02
- Forest Highlands North
- Forest Hill Garden Add
- Forest Hills
- Forest Hills Estates
- Forest Hills Rev
- Forest Hlnds
- Forest Knoll Estates
- Forest Lane Estates 2
- Forest Mdws Add #6
- Forest Mdws Add 05
- Forest Meade
- Forest Meadows
- Forest Oaks 01
- Forest Place
- Forest Place Rev
- Forest Plains
- Forest Plains Add
- Forest Point Twnhms Condo Ph 01-02
- Forest Point Twnhms Condos Ph 02
- Forest Ridge North
- Forest West Condo
- Forest West Condos
- Forest West Properties
- Forestcrest Estates
- Forestwood Creek 02
- Forestwood Creek II
- Forestwood On The Creek 02 Condos
- Forestwood on the creek condos
- Fort Worth Ave Twnhms
- Fort Worth Avenue Twnhms
- Forty Twenty-Three Hall Condo
- Fortyone11 Townhomes
- Forum Of Dallas Condo
- Fountain Place
- Fourakre Homestead
- Fox Hollow
- Fox Paul
- Foxfire
- Frank B Griffin
- Frank S Resub
- Frankford Lake
- Frankford Lake Add
- Frankford Meadow
- Frankford Meadows
- Frazier Fellowship West Ph 02
- Fred L Bush
- Fred Mcconathys Sub 1
- Frederick M
- FREELAND HEIGHTS
- Freemans Colubmia
- Freemans Columbia
- Freemans Columbia Ave
- Freemont
- Frenchmans Creek
- Frenchmans Crk Sec 02
- FRIO HEIGHTS
- Frst Grove 05
- Frst Hills Add
- Frst Meadows Sec 01
- Frst Meadows Sec 02
- Frst Meadows Sec 03
- Fruitdale
- Fruitdale Acres
- Fruitdale Acres #2 Replat
- FRUITDALE ACRES 3
- Fruitdale Annex
- G A Knights Oak Lawn
- G T Hawpes Homestead
- Gables at Allen St.
- Gables At Royal Lane
- Gaddis & Mccoy
- Garden Heights
- Garden Heights 02
- Garden Heights Add
- Gardenhomes Of Preston Place
- Garoutte H G
- Garret
- GARRETT PARK TOWNHOMES
- Garvon-Dallas 03
- Gaston Park
- Gaston Park Ph 1 Bldg I
- Gaston Place
- Gaston Terrace
- Gaston Terrace Rev
- Gastonian Condo
- Gastonwood
- Gastonwood 04
- Gastonwood 05
- Gastonwood Add Sec 02
- GENARO M A
- Gene C Uselton Sub
- Geneva Heights
- Geo F Sleeth
- George F Sleeths Add
- George Harwood
- GEORGE J BRYAN REV
- George J Bryans Rev
- George L Leonard Surv
- Georgetown
- Georgetown Court Condos
- Georgetown Court Twnhms Condos
- Georgetown Office Community
- Gerlach & Conduitt
- Gertie Andrews
- GILBERT & KNIGHT VOL39
- Gilbert Condo 3919
- Gilbert Condo 4033
- Gilbert Condos 3817
- Gilbert Oaks Condos
- Gilbert Street Condo
- Gilbert Twnhms 4411
- Gillespie 3424
- Gillespie Twnhse Add
- Gilliam O A
- Gills Add
- Gilroy Miss Carrie
- Gladys H Clark Add
- Glen Abbey
- Glen Abbey-Ash Bluff 02
- Glen Cove
- Glen Cove 01
- Glen Cove Add Instl 01
- Glen Cove East Sec 01
- Glen Cove East Sec 03
- Glen Cove Inst 02
- Glen Hills
- Glen Hills 02
- Glen Hills Instl 01 Add 02
- Glen Hills Rev
- Glen Lakes 01 Rev
- Glen Lakes 02 Rev
- Glen Oaks
- Glen Oaks #7
- Glen Oaks North
- Glen Oaks Tonwhomes Condo
- Glen Oaks Twnhms
- Glen Oaks Twnhms Condo
- Glen Rose Add
- Glencoe Terrace
- Glencoe Terrace Add
- Glendale
- Glendale Acres
- Glendale Add
- Glendale Heights
- GLENDALE HEIGHTS 3RD SEC
- Glenridge Estates
- Glenridge Estates 2
- Glenridge Estates 2nd Sec
- Glenridge Estates 3
- Glenrose
- Glensneed
- Glenview
- Glenview Add 16th Instl
- Glenview Add 23rd Sec
- Glenview Add 8th Sec
- Glenview Rev
- Glenwood
- Glenwood Estates
- Glnridge Estates
- GMA
- Gold Crest Condo
- Goldmine
- Golf Park
- Grace Presbytery Add
- Grammercy Place Condo
- Grand At Turtle Creek Condo
- Granite Uptown Condo
- Graves Heights
- Grbk Bluffview Add
- Great Oaks
- Green Acres
- Green Cove Estates
- Green Meadows
- Greenbriar Place Condos
- Greenbrier Place Condo
- Greenbrier Place Condos
- Greengate Planned Office Dev
- Greengate Professional Bldg Condo
- Greenhill Park
- Greenland Hills
- Greenland Hills 1st Sec
- Greenland Hills 1st Section
- Greenland Hills 60 Foot Sec
- Greenland Hills 60FT Sec
- Greenland Hills Annex
- Greenland Hills Hill Top Sec
- GREENLAND HILLS HILL TOP SECTION
- Greenland Hills Sec
- Greenleaf Bickers
- Greenleaf Village Ph 02
- Greenleaf Village Ph 2 2
- Greenville Crest
- Greenville Crest 02
- Greenville Crest Annex
- Greenville Heights
- GREENWAY CREST
- Greenway Parks
- Greenway Place Condo
- Greenway Terrace
- Greenway Terrace 02 Sec 02
- Greenway Terrace Rev
- Greenway village
- Greenwood Flats Condos
- Greenwood Terrace
- Greenwood Terrace Rev
- Greers
- Grenadier
- Grove at White Rock Hills
- Grove Mound Add
- Grove Oaks
- Grove White Rock Hills
- Grovedale Heights
- Grovelawn
- H D Lewis Sub
- H M SKELTONS
- H T Lackey
- H T Lackeys 02 Ave
- Habitat At 3020
- Hal Moseleys
- HALL Arts Residences
- Hall Condo 3922
- Hall Street Condo 4104
- Hall Throckmorton Add
- Hall-Mark Indust Park
- Hamburg Addition
- Hamilton
- Hamilton & Mcconnell
- Hamilton Park
- Hamilton Park 01
- Hamilton Park 02
- Hamilton Park 04
- Hamilton Park 05
- Hamilton Park 06 02 Inst
- Hamilton Park Add Sec 08
- Hamilton Park Sec 06
- Hamilton Silverhill Add
- Hamiltons Add
- Hampton & Industrial
- Hampton C M
- Hampton Hills
- Hampton Place
- Hampton Plaza
- Hampton Square
- HAMPTON TERRACE
- Hams
- Hancock Sub
- Hancocks
- Hann & Kendalls
- Hann & Kendalls Sub 1st Sec
- Harbor Glen Ph 02
- Harbor Glen PH2
- Harbord Oaks Estates
- Harcourt House Condo
- Harding & Harrison
- Harmon & Trunk Liberty Place B
- Harris H
- HARRY HINES TRADE CENTER CONDOS
- Hartford Condo
- Hartford Condominiums
- Hartford Condos
- Hartford Place Condo
- Harvard Add
- Harvey R Welch Homestead
- Haskell Place
- Hatcher Street Heights
- Haven Condo
- Haverwood Meadows
- Hawkins W E
- HAWTHORNE STREET TOWNHOMES
- Hawthorne Street Twnhms
- Hayden
- Haydens Sub
- Haymaker
- Heartsill
- Heartsill Add
- Hedgerow Park
- Heidelberg Court Condos 02
- Heights Add Beckley
- Heights Macarthur
- Heights of State Thomas PH 02
- Heights State-Thomas
- Heisel Brothers
- Hemlock At Park Lane Condos
- Henderson Ave
- Henderson Hlnd Bourn Add
- Heritage At The Stoneleigh Hotel
- Heritage Place
- Heritage Square 02
- Heritage Square 04 Ph 02
- Heritage Square Ph 01
- Heritage Square Ph 02
- Herman Place
- Herschel Ave Condo
- Herschel Ave Condos
- HH Trading Center Condo Regime
- Hi-Vu Terrace
- Hickory Creek Ph 02
- Hickory Creek Ph 1
- Hickory Crk Ph 1
- HIdden Bend Townhomes
- High Grove at West Kessler Heights
- High Grv West Kessler Heights #1 A
- High Hollow Condo
- High Hollows Condo
- High Mdw Add
- High Meadow
- High Meadow 02
- High Meadows Addition
- Highland Acres
- Highland Creek Manor
- Highland Estates
- Highland Green
- Highland Hills
- Highland Hills #17
- Highland Hills 08
- Highland Hills 09
- Highland Hills 13
- Highland Hills 16
- Highland Hills 17
- Highland Hills 18
- Highland Hills 19
- Highland Hills Add 06
- Highland Hills Add 4
- Highland Hills Turnkey
- HIGHLAND HILLS WEST
- Highland Mckamy 02
- Highland Meadows
- Highland Meadows 04
- Highland Meadows 08
- Highland Meadows 10
- Highland Meadows No 8
- Highland North 02
- Highland North Add 02
- Highland North Add Sec 02
- Highland North Villas
- Highland Oaks
- Highland Oaks 02 04 Inst
- Highland Oaks 02 05 Inst
- Highland Oaks 03 Inst 02
- Highland Oaks 04 Inst 03
- Highland Oaks 04 Inst 05
- Highland Oaks 04 Int 01
- Highland Park Acreage
- Highland Place Condo
- Highland Residences
- Highland Square
- Highland Vista Estates
- HIGHLAND VISTA ESTS
- Highland Woods
- Highlands
- Highlands Condos
- Highlands North Sec 01
- Highlands North Sec 02
- Highlands North Sec 03
- Highlands Of Mckamy Ph IV
- Highlands Of Mckamy V
- Highlands Pkwy
- Highlands Sec 1
- Highlands Sec Two
- Highway Estates
- Hill Crest
- Hill On Park Lane
- Hill On Park Lane Condo
- Hill View Add
- Hillburn Park
- Hillcrest
- Hillcrest Add Manor Sec 01
- Hillcrest Estates
- Hillcrest Green 2nd Inst
- Hillcrest Havens 02
- Hillcrest Hollows Condos
- Hillcrest Homes
- Hillcrest Homes 02
- Hillcrest Homes 03
- Hillcrest Homes 04
- Hillcrest Homes Add
- HILLCREST HOMES NO 4
- Hillcrest Homes Sec 04
- Hillcrest Manor 1st Sec
- Hillcrest Manor 2nd Sec
- Hillcrest Manor Sec 02
- Hillcrest Oaks Estates
- Hillcrest Park
- Hillcrest Villa Condo
- Hillridge 1st Sec
- Hillridge 1st Section
- Hillridge 2nd Section
- Hillridge 3rd Sec
- Hillridge Sec 02
- Hillside
- Hillside Add
- Hillside Oaks Add Ph 01
- Hillside Oaks Ph 01
- Hillside Oaks Ph 02
- Hillside Oaks Ph 03
- Hillside Oaks Ph 05 01
- Hillside Oaks Ph 05 02
- Hilltop Homes
- Hilltop Sec Greenland Hills
- Hilltop Terrace Add
- Hillvale Add
- Hillvale Add Tract 20 Cb 6015
- Hillview
- Hillview Add
- Hillview Terrace Sec 01
- Hiltop Homes
- Hines
- Hitts
- Hockaday Manor 03
- HOCKADAY MANOR 2
- Hockaday Park
- Hockaday Square
- Hockaday Square 07
- Holland Ave Add Sec 01
- Holland Ave Condo 4015-4025
- Holland Ave Sec 03
- Holland Ave Twnhms 4002
- Holland Condo 3718
- Holland Oaks Condo
- Holland-Reagan 2
- Hollowbrook Add
- Hollows North
- Hollows North Condo
- Hollows North Condominium
- Holly Glen Condo
- Holly Glenn Condo
- Holly Hill Twnhms Ph 02
- Holly Oaks Twnhms
- HOLLY PARK CONDOS
- Hollywood
- Hollywood Rev
- Holmes
- Home Court 04 Condo
- Home Gardens
- Home Gardens 03
- Homeland Estates
- Homeland Estates 2
- Homestead
- Homestead Add Mckells
- Homestead Gardens
- Homestead Gardens Add
- Homestead Manor
- Homestead Manor Annex
- Homestead Park
- Homestead Place
- Honey Crest Heights
- Honey Spgs
- Honey Spgs Add
- Honey Springs
- Hoods J T
- Hope Estates
- Hope Street Commons
- Hope Terrace
- Horizon Estates
- House
- Houstons A J
- Hubbard
- Hudson
- Hudson Condo
- Hudson Street Twnhms South
- Huffhines Hill
- Hughes H G
- Hunters Bend Ph 02
- Hunters Bend Ph 1a
- Hunters Run Phase 1
- Hyde 02 Rev
- Hyde Park Estates
- I-Iii
- Ideal
- Ideal Add
- Ideal Annex
- Idlewild
- IDLEWILD ACRES
- Idlewild Acres 4th Sec
- Idlewild Acres Sec 04
- Idlewild Annex
- Imperial House Condo
- Imperial House Condos
- IMPTS ONLY ACCT
- INDEPENDENCE PARK #2
- Independence Park 02 Rep
- Independence Park 03
- Independence Park 03 Ph B
- Industrial Acres Rev
- INT20080038522 DD1252008 CO-DC
- INT201800249725 DD09172018 CO-DC
- Interurban Hill
- Intown Home-Farmers Market
- Intown Homes & Farmers Market
- Intown Homes at Farmers Market
- Intown Homes Farmers Market
- Intown Homes-Farmers Market
- Intown Twnhms 01
- Intown Twnhms 02 Condo
- Inwood
- Inwood Commons Condos
- Inwood Crossroads Condo
- Inwood Crossroads Condos
- Inwood Gardens
- Inwood North Estates
- Inwood Road Estates
- Inwood Terrace
- Inwood Twnhms
- Irvin Joe A
- Irwin Joe 03
- Irwindell
- IRWINS ALEX M
- Issac Elam Surv Abs #442 Cb 62
- J A Swanns
- J C Hugules & Clouds Wendelkin
- J D Aldredge Rev
- J D Aldredges
- J D Cullums Oak Lawn Add
- J Fondren Surv Abs 476
- J Toole Add
- J W Taylor Surv Abs 1475
- Jackie Heights
- Jackson Heights 01
- Jackson Heights 02
- Jackson Highlands
- Jackson Meadows
- Jackson Meadows Sec 02
- Jackson Meadows Sec 03
- Jackson Terrace
- Jacob Metzger
- Jad Adam Sub
- James May
- James N Tardys
- Jamestown
- Jammar Circle Sec 1
- Janmar Circle 04
- Janmar Circle 08
- Janmar Circle 09
- Jc Hooper Add
- Jc Hoopers Sub Ncb 1557
- JD Aldredge
- JEFFERS
- Jenkins & Broughtons
- JESSIE EMBRY 2
- JL Ferguson
- JLB Cedar Springs
- Joe & Petra Ramirez
- Joe A 02 Irvin
- Joe A Irwin #1
- Joe Irwin 04
- Joe Irwin 6a
- JOE IRWIN NO 6A
- John Grigsby Surv Abs #495 Cb
- John M Pruitt Surv Ab s #1179
- John R Fondren
- JOHN T MOORE
- JOHNSTON PARK 2
- Jordan
- Joseph Langley Surv Abs #800 C
- Josephine Court Ph 01 & 02
- Josephine Court Ph 03 & 04
- JOYCE WAY 568FR PRESTON RD
- Jt King Land City Bl 6870
- Jt Piranios Sub
- Juarez Heights
- Junis Heights
- Junius
- Junius Heights
- Kahn E M & Co Emp Loan & Sav Assn
- Kaiser Permanente Add
- KATHRYN ALEXANDRIA ELLIOTT
- Keeneland Court
- Keist Valley 02
- Keller Spgs Condos
- Kellman Park Lane Add Rev
- Kelly Park Studio Condo
- Kelman Heights
- Kelman Heights Add
- Kelman Park Lane Rev
- Kelman William
- Kenilworth
- Kenilworth Estates
- Kenilworth Estates 8th Inst
- Kensington Gardens 2c
- Kensington Village Ph 01
- Kesley Square Addition
- Kessler Heights
- Kessler Heights 03
- Kessler Highlands
- Kessler Park
- Kessler Plaza
- Kessler Plaza 2nd Instl
- Kessler Plaza Add 02 Instl
- Kessler Square
- Kessler West Townhomes
- Kessler Woods
- Kidd Spgs Heights
- Kiest Forest
- Kiest Park Estate
- Kiest Subdivision
- Kiest Valley 01 Inst
- Kiestview
- Kiestwood Estates
- Kimball Acres
- Kimball Estates
- Kimball Ranch
- Kimsey Place
- Kimsey Place 2
- Kimsey Place 3
- Kings Garden
- Kings Highway
- Kings Hwy Add 3
- Kings Row Ind Dist 4th Instal
- Kingsley Manor Townhouses Condos
- Kingsley Manor Twnhs Condos
- Kingsley Meadows 02
- Kingsley Meadows 02 Rev
- Kirby Place Condos
- KIRKPATRICKS
- Kirksey Heights
- KISSEL HOMES
- Kissells Prairie Crk Heights Ad
- Kleberg Villas
- Knight Irving Rev
- Knight Street Condo
- Knight Street Townhomes
- Knight Street Twnhms
- Knopp
- KNOX
- Knox Henderson
- Knox Park Heights Condo
- Knox Village Garden Homes Ph 02
- KWIK MULTI SITE
- L G Brown
- L H BOMARS
- L O Daniel Jr Add
- La Belle Maison Condo
- La Buea Vida
- La Buena Vida
- La Espada Condo
- La Fontaine Condo
- La Foy Place 01 Instl Add
- La Foy Place 02 Instl
- La Foy Place 2nd Instl
- La Prada Place
- La Spring
- La Tour Condo
- La Tour Condos
- La Valencia
- Labarba
- Labarba James
- Lackey S H T 02 Ave Add
- Laclede Add
- LACLEDE ADDN BLK 2013 LOT 1 RUSK & CARROLL
- Lacy Woodlands
- Lafayette Heights
- Lafayette Square
- Lafoy Place
- Lagow Heights
- Lagow School
- Lagow Spgs
- Lagow Spgs 2 Add
- Laguna Townhomes
- Laguna Twnhm Add
- Laguna Twnhms
- Lake Cliff Place Add
- Lake Cliff Tower Condo
- Lake Cliff Tower Condominiums
- Lake Como Place
- Lake Crest
- Lake Estates
- Lake Forest Ph A
- Lake Forest Ph A-R1
- Lake Forest Ph B R1
- Lake Forest Ph C
- Lake Gardens Rev
- Lake Highland
- Lake Highland Estates
- LAKE HIGHLAND ESTATES 3
- Lake Highland Estates 5
- Lake Highland Estates 7
- LAKE HIGHLAND VILLAGE
- Lake Highlands
- Lake Highlands City Bl 5398 2nd SE
- Lake Highlands Estates
- LAKE HIGHLANDS ESTATES 06
- Lake Highlands Estates 10
- Lake Highlands Estates 12
- Lake Highlands Estates 14
- Lake Highlands Estates 7
- Lake Highlands Estates 8
- Lake Highlands Estates 9
- Lake Highlands Estates No 14
- Lake Highlands Estates Rev
- Lake Highlands North
- Lake Highlands Rev
- Lake Highlands Square
- Lake June
- Lake June Ter #1
- Lake June Terrace
- Lake June Terrace Add 01
- Lake North Estates
- Lake Park Estates
- Lake Park Estates 6
- Lake Ridge Estates
- LAKE RIDGE ESTATES NO 3
- Lake Terrace
- Lake Way Add
- Lakeland Hills 01
- Lakeland Terrace
- Lakeland Terrace Add
- Lakes Of Bent Tree Condo
- Lakeshore Hills
- Lakeshore Hills Rev
- Lakeside
- Lakeside Hills
- LAKEVIEW HEIGHTS
- Lakeview Hieghts
- Lakeview Lofts Condos
- Lakeway
- Lakewood
- Lakewood Blvd
- Lakewood Blvd Add
- Lakewood Embassy Condos
- Lakewood Estates
- Lakewood Heights
- Lakewood Heights Add
- Lakewood Heights Add Blk
- Lakewood North Estates
- Lakewood Park Estates
- Lakewood Village Addition
- Lakewood West Condo
- Landmark Add Ph Two
- Lane Condos
- Lane Park
- Lane Park Add
- LANGSTONS A P HOMESTEAD REV
- Lansdovvne Estates 2nd Instl
- LARKSPUR IVY 2
- Las Colonitas Condo
- Las Haciendas 01
- Las Haciendas 03
- Las Palmas of Dallas
- Las Villas De Oak Cliff Ph 01
- Las Villas De Oak Cliff Ph 04
- Laspring Add
- Latour Condo
- Latour Condominium
- Laurel Valley
- Lavelle Evelyn Heights
- Laverne
- Lawn Glen Abbey
- Lawrence
- Lawson
- Le Parc Condo
- Le Rochelle Condo
- Lea Crest
- Leclerc Add
- Ledbetter Gardens
- Ledbetter Hills
- Lennox Royal
- Lenway & Meyers
- Les Chateaux Condo
- Les Chateaux Condominium
- Les Chateaux Condominiums
- Les Jardins Add
- Lexington Herschel Ph 01
- Lexington State Thomas
- Liberty Annex
- Liberty Annex Rev
- Liberty Anx
- Liberty Anx Add
- Liberty Heights
- Liberty Hill Add
- Liberty Place
- Liberty Place Add
- Lifescape Villas on Midway
- Lifescape Villas On Midway A Condo
- Lifescape Villas On Montfort
- Lifescape Villas On Montfort Ph 01
- Light Pointe Place
- Light Pointe Place Ph 01
- Lincoln Manor
- Lincoln Manor 02
- Lincoln Manor Add
- LINCOLN MANOR BLK
- Lincoln Place
- LINCOLNSHIRE
- Linda Heights Add
- Linda Heights Rep
- Linda Terrace
- LINDELL AVENUE CONDOMINIUMS
- Lindelll Condominium
- Lindenwood Park 03 Instl
- Lindenwood Park 1st Inst
- Lindenwood Park 2nd Inst
- Linwood Place
- Linwood Villas
- Lisbon Heights Add
- Lisbon Heights Annex
- Little Town Creek
- Live Oak
- Live Oak Add Ph 1
- Live Oak Add Ph 2
- Live Oak Condos
- Live Oak Lofts Condo
- Live Oak Ph 2 Bldg 3
- Live Oak Townhome 02
- Livingston Place
- Llano Place
- Lloyd Add Tr 8
- Lobello Estates
- Lochwood
- Lochwood 07
- Lochwood Add Instl 03
- Lochwood Add Instl 11
- Lochwood Estates
- Lochwood Instl Add 09
- Lochwood Meadows
- Lochwood Meadows Rev
- Lochwood North
- Lochwood Rev
- Lockheed Hills
- Lodges At Congress Rev
- Lofts Cedar Spgs
- Lofts Condo
- Lofts on Cedar Spgs
- Lofts on Cedar Springs
- Lomas Park
- Lomax Add
- Lomo Blanco Condo
- London Park Condo
- Lontos Heights
- Lontos Heights Add
- Lorelei Clft
- Lorenzo Van Cleve Surv Abs #15
- Los Encinos
- Los Nogales Condo
- Loupot Heights
- Love Field
- Love Field area-JT Hood
- Lovedale 02
- Lovedale Highlands Ph II
- Loveland
- Lovers Lane Condos Ph 01 04
- Lovers Lane Condos Ph 01-04
- Lovers Lane East
- Lovers Lane East Add 02 Instl
- Lovers Lane Heights
- Lubys Add
- Lucas Raleigh St
- Luna Park Estates
- Lyndhurst
- Lynn Haven Rev
- Lyons
- Lyons Gate Condos
- M Bird Add
- M C LACASTE
- M Central Residences Condo
- M Street Village
- M Streets Twnhms
- M Streets Twnhms 2nd Inst
- M Thevenets Add
- M W Jackson
- Ma Genaro Sub City Bl 6125
- MAC ARTHUR HEIGHTS
- Madonna Apt Condominium
- Maffett Love & Eisner Sub
- Maffett Love & Isner Sub
- Magnolia Hill
- Magnolia On Baltimore
- Magnolia Park
- Magnolia Plantation Condo
- Mahons Homestead
- Main Street Condos
- Majestic Heights Sec A
- Majors & C Majors Resubd
- Manchester Downs Rev
- Manchester Place Add
- MANETT CONDO
- Mansfield R A
- Mansion Residence
- Maple Lawn Terrace
- Maple Manor Condo
- Maple Wood
- Maplewood 01
- Maplewood 04
- Marc Condo
- Maria Medina
- Maria Rivera Add
- MARIGOLD & L B J FREEWAY
- MARIN WAY
- Marsalis Club
- Marsalis Park
- Marsalis Park Rev
- Marsh Lane
- Marsh Lane 02
- Marsh Lane 2
- Marsh Lane Add Sec 02
- Marsh Lane Rev
- marshal
- Marshall Terrace Add
- Martyns Oak Lawn
- Martyns Oak Lawn Add Bl 1504
- Martys Oak Lawn Add
- Mary Street
- Matilda Condo
- Mayborn Market
- Mayfair at Turtle Creek
- Mayfair Turtle Creek Condos
- Mayflower Estates
- Mayo\’s
- Mayos
- Maywood Estates
- Mccarville & Bonds
- Mcelveen
- Mcfarlane
- Mcguires Central
- Mchahan Sub Div Add
- McKinney Condo 1999
- Mcneese
- Mcshann Estates
- Mcwhirter S W W
- Meadow Crest
- Meadow Dale
- Meadow Gardens
- Meadow Glen
- Meadow Glen Ph 2a
- Meadow Glen Ph 2b
- Meadow Nest
- Meadow Park
- Meadow Park 04
- Meadow Park Add Instl #10
- Meadow Park Inst 02
- Meadow Park Inst 09
- Meadow Park Instl Add 07
- Meadow Park Tower
- Meadow Place
- Meadow Wood
- Meadowbrook Terrace
- Meadowbrook Village
- Meadowcliff Estates
- Meadowlark
- Meadowmere
- Meadowmere 03
- Meadowood Estates Sec 03
- Meadowood Estates Sec 3
- Meadowood Estates Sectiono 03
- Meadows
- Meadows 01
- Meadows 02
- Meadows 03
- MEADOWS 3
- Meadows At Spring Valley
- Meadows North Condo
- Meadowwood Estates Sec 02
- Mecca Place Ph 1
- Mediterranean Gardens
- Mellersh Oak Lawn
- Melrose
- Melrose Heights Ph II
- Melshire Estates
- Melshire Estates 2
- Melshire Estates 3
- Melshire Estates No 4
- Mercer Square Condo
- Mercer Square Condos
- Merion at Midtown Park
- MERION AT MIDTOWN PARK 2
- Merion at Midtown Park Ph 1
- Merion at Midtown Park Ph 2
- Merion at Midtown Park Ph 4
- Merion Midtown Park Ph 1
- Merion Midtown Park Ph 4
- Merrifield Manor
- Merriman Manor
- Merriman Park
- Merriman Park Add
- Merriman Park Estates
- Merriman Park Estates 04
- Merriman Park Estates 05
- Mesquite Heights Add
- Metro Live Oak Ph 1 Bldg 1
- Metropolitan @ 1200 Main St
- Metropolitan 1200 Main St Cond
- Metropolitan 1200 Main St Condo
- Metropolitan 1200 Main Street
- Metropolitan Club
- Metropolitan Club Condo
- Metropolitan Club Condos
- Metropolitan Condominium
- Metropolitian 1200 Main St Condo
- Middlebrook Place
- Middlefield Villa
- Middlefield Village
- Middleton Bros
- Midtown Heights
- Midtown Lofts
- Midway Crest Haven
- Midway Crossing Add
- Midway Estates
- Midway Estates 2
- Midway Forest Rev
- Midway Highlands
- Midway Hills
- Midway Hills 04 4th Inst
- Midway Hills 05
- Midway Hills 06 01 Inst
- Midway Hills 06 04 Inst
- Midway Hills 06 05 Inst
- Midway Hills 4
- Midway Hills Terrace
- Midway Hollow – Glenridge Estates
- Midway Manor Add
- Midway Meadows Ph 1
- Midway Meadows Ph 2
- Midway Villas
- Miers Cole & Mckinney Ave
- Milam Street Add
- Miles Bennett Surv Abs #52 Cb
- Miles Contractors Inc
- Milimo Terrace
- Milimo Terrance Add
- Military Park
- Mill Hollow Estates
- Miller & Stemmons
- Miller & Stemmons Add
- Miller Ferry Row
- Millmo Terrace Add
- Milmo Terrace
- Minor Tenison Vlg Buckner Ter
- Minor Tenison Vlg Buckner Terrace
- Minor Tenison Vlg-Buckner Terrace
- Minor Tennison Vlg Bucker Terrace
- Mirabelle Condos
- Mirror Lake Forests
- Miss Carrie Gilroy
- Mockingbird Hill
- Mockingbird Hill Add
- Mockingbird Hill Rev
- Mockingbird Manor
- Mockingbird Mdws Add
- Mockingbird Meadows
- Mockingbird Park
- Modern Place Twnhms
- Mohawk Heights
- Mohawk Townhomes
- Monarch Condominium
- Monarch Place
- Monfort Twnhms
- Mont Clair Acres
- Mont Clair Rev
- Montclair Acres Sec 01
- Montebella Condos
- Montebello Park
- Montessori Abrams Place
- Montfort Place
- Montfort Twnhms
- Montgomery Thos
- Monticello Add
- Monticello Crossroads Condo Ph 01-03
- Monticello Crossroads Ph 01 03
- Monticello Rev
- Montrose
- Mooks Sub
- Moore
- Moriss
- Morningside
- Morningside 02 Rev
- Morningside 04 Ph A
- Morningside 2
- Morningside 3
- Morningside 4 Ph A
- Morningside 4 Ph B
- MOSER UP AT HENDERSON
- Mosers
- MOSS CREEK ESTATES NORTH II
- Moss Farm
- Moss Farm 03
- Moss Farm Sec 02
- Moss Meadows
- Motor Circle Condo
- Mount Auburn
- Mount Auburn Add
- Mount Vernon Heights
- Mountain Creek Lake 01
- Mountain Creek Meadows 01 Ph 01
- Mountain Creek Meadows 02 Ph 01
- Mountain Creek Meadows Ph 02
- Mountain Creek Meadows Ph 03
- Mountain Crk Lake Instl 2
- Mountain Crk Mdws Ph II
- Mountain Hollow 01
- Mountain Lake Estates
- Mountain Lake Heights Addition
- Mountain Ridge Estates
- Mountain Valley Estates
- Mountain Vista
- Mountain Vista Add Sec B
- Mountain Vista Sec B
- Moxley\’s
- Mrs A F Chicks
- Mrs S E Skinners
- MRS W S CHAMBERS
- Mstreets 5800
- Mstreets 5800 Condo
- Mt Auburn
- Munger
- Munger Place
- Munger Place 02
- Munger Place Add
- Munger Place Add Cb 685
- Munger Place Condo
- Munger Place Condos
- Munger Place Heights
- Munger Square Rev
- Munger Up Condo
- Murdock Hollow Estates #1
- Murphy & Bolanz
- Museum Tower
- Museum Tower Condo
- N
- Nanette Estates
- Nantucket Village
- Nantucket Village North
- Nat Floyd Partition
- NBKW Chapel Downs
- Neeley 01
- Neighborhood
- Netherland Estates
- Nettervilles Sub
- NEW BIRTH WORSHIP CE
- New Covenant Presbyterian Church
- NEWMAN PARK
- Newport Condos
- Newton Place Condo
- Niblo Estates
- NIKKO CONDOMINIUMS
- Nikko Condos
- no
- Nob Oaks
- Nor-Dal
- North Davilla Drive Estates
- NORTH DAVILLA DRIVE ESTATESGLENRIDGE ESTATES 3
- North Highland Estates
- North Highlands Estates
- North Highlands Estates 2nd Inst
- North Hill Estates
- North Hills Add
- North Oak Lawn
- North Rdg Estates 02
- North Ridge
- North Ridge Estates
- North Ridge Estates Rev
- North Ridge Ests Rev
- North Ridge Park
- North Slopes Add
- North Slopes Woodridge Condos
- North Tower Residences
- North Zang Dev
- Northaven Hills
- Northaven Hills Rev
- Northaven Manor
- Northaven Meadows
- Northaven Park
- Northaven Place 02
- Northcrest
- NORTHCREST CONDOMINIUMS
- NORTHCREST ESTATES 3
- Northcrest Instl 01
- Northcrest Instl 03
- Northcrest Park
- Northcrest Park Add
- Northcrest Rev
- NORTHERN HEIGHTS
- Northern Hills
- NORTHPARK GARDEN TOWNHOUSES
- Northpark Garden Twnhms
- Northpark Gardens Twnhms
- Northpointe II
- Northridge Add
- Northridge Estates
- Northtown Square
- Northway Estates
- Northway Hills
- Northwest Acres
- Northwest Heights
- Northwest Hills
- Northwest Shadywood Add
- Northwood Estates
- Northwood Heights
- Northwood Hills
- Northwood Hills 01
- Northwood Hills Add 4th Sec
- Northwood Hills Add Sec 10
- Northwood Hills Estates
- Northwood Hills Estates Sec 03
- Northwood Homes
- NORTHWOOD ON THE CREEK
- Northwood Park
- Northwood Park Rep
- Northwood Place
- Northwood Terrace
- Northwoods Hills
- Not Named
- Nussbaumers Gaston Ave
- Nylund Add
- O A Teal
- O C Buckelew
- O E TAYLOR
- O LECLERCS
- OAK
- Oak Cliff
- Oak Cliff Add
- Oak Cliff Add 01
- Oak Cliff Annex
- Oak Cliff Anx Add
- Oak Cliff Estates
- Oak Cliff Gardens
- OAK CLIFF ORIGINAL
- Oak Cliff Original Town
- Oak Cliff Original Town Of
- Oak Cliff Ranches
- Oak Grove Condo
- Oak Hill Park
- OAK HILL PARK ANNEX
- Oak Lawn & North Dallas
- Oak Lawn Heights
- Oak Lawn Heights Tr 2
- Oak Lawn Place
- Oak On Monfort Ph
- Oak Park Estates
- Oak Park North 02
- Oak Tree Village
- oakcliff
- Oakdale Sec Four
- Oakdale Sec Three Ph A
- Oakhollow Condo
- Oakhurst 03
- Oakland Ave
- Oakland Ave Annex
- Oakland Hills
- Oakland Hills 01
- Oakland Hills Add Sec 01
- Oakland Place
- Oakland Place Add
- Oakland Terrace
- Oaklawn
- Oaks Of Lakewood Condo
- Oaks of Lakewood Condos
- Oaks Of Preston Ridge Condo
- Oaks of Preston Ridge Condominiums
- Oaks on Montfort
- Oaks On Montfort Condos
- Oaks On Montfort Ph 02 03 04
- OAKS ON MONTFORT PH II III IV
- Oaks on the Bend
- Oaks On The Bend Condos Ph 01-04
- Oaks On The Lane Condo Ph 01
- Oaks On The Lane Condo Ph 02
- Oaks on the Lane Condominium
- Oaktree Ph Two
- Ol Horton Sub
- Old East Dallas
- OLD INDIANA PLANTATIONS UNREC
- Old Mill Court Ph 2-B
- Old Mill Court Ph 2-C
- Old Mill Court Ph 2a
- Old Vickery Square Twnhms Condos
- Old Virginia Jumbo Plantations
- Olde Farm Estates
- Olde Farms Estates
- Olive-Dale
- Olive-Dale 02
- One Arts Plaza Condo
- One Arts Plaza Condominium
- One Dallas Condo
- One Energy Square
- One Galleria Tower
- One Graystone Centre
- One Holland Place Condos
- One Orleans Place Condos Ph 01 & 03
- One Steppington Place Condos
- Oram Court
- Oram Homestead
- Oram Homestead Add
- ORAM HOMESTEAD SUBDN
- Oram S W
- Overlands
- Overlands Add
- Owenwood
- Ozone
- P J ALLEN
- P L Dickermans Blk B1444 LT 6 CO-DALLAS
- Paddy Heights 01
- Pagewood Twnhms Ph 01
- Palo Alto Townhomes Condo
- Palo Alto Twnhms Condo
- Palo Alto Twnhms Condos Bldg 7
- Palo Alto Twonhomes Condos
- Paradiso Condo Ph 01
- Paradiso Condo Ph 02
- Paradiso Condo Ph 03
- Paradiso Condo Ph03
- Paradiso Condos
- Paradiso Phase I
- Paraiso Escondido
- Paraiso Escondido Add
- Park 02 Indenpenence
- Park Carillon Condo
- Park Central Condo
- Park Central Condominiums
- Park Central Condos
- Park Central Estates 2
- PARK CENTRAL ON THE LAKE
- Park Cities Twnhms Amd
- Park District
- Park Forest 02 Inst
- Park Forest 03 Inst
- Park Forest 05
- Park Highlander
- Park Highlands
- Park Highlands 01 Inst
- Park Hollow
- Park Hollow Luxury Residences
- Park Independence
- Park Lane Place Twnhms
- Park Lane Townhms Ph 01
- Park Lane Townhomes
- Park Lane Twnhm
- Park Lane Twnhms Ph 02
- Park Meadow Condo
- Park Meadow Condominiums
- Park Oaks Add
- Park Place Twnhms Condo
- Park Plaza Twnhms
- Park Preston 01
- Park Preston 02
- Park Royal Condos
- Park Royal Condos Regime
- Park South
- Park Sovereign Condo
- Park Towers
- Park Towers Condo
- Park Towers Condominiums
- Park View Annex
- Park View Place
- Parkdale
- Parkdale Club
- Parkdale Club Add
- Parkdale Drive
- Parkdale Heights
- Parkdale Heights Add
- Parkdale Heights Rev
- Parkers
- Parklawn
- Parks & Freedman Spgs Ave
- Parks Estates
- Parks on Hillcrest
- Parks On Travis Condos
- Parkside
- Parkside Cedar Spgs Bldg 5
- Parkside Cedar Spgs Condo
- Parkside Cedar Spgs Condos
- PARKSIDE CEDARS TOWNHOMES
- PARKSIDE CONDOMINIUM
- PARKSIDE RESIDENTIAL CONDOMINIUM
- Parktown Collection Condos
- Parkview Ph 1b
- Parkway Estates 2
- Parkway Lane Condo #1
- Parkway Lane Ph I
- Parkway Ph I
- Parkway Quarter
- PARKWAY QUARTER CONDOMINIUMS
- Parkway Quarter Condos
- Parkway Quarters Condos
- Parkway Village 02
- Parkway Village Ph 01
- Parkway Village Sec One
- Parkway Village Sec Two
- Parkwood Creek
- Parkwood Creek Condos
- Parkwood Place Condos
- PARKWOOD TOWNHOMES
- Paroo Add
- Partition Nc Floyd Est Thomas
- Pasadena
- Paseo
- Patio Homes Chimney Hill 01 Inst
- Patio Homes Chimney Hills 01
- Peacock Terrace
- Peaks Addition
- Peaks Sub
- Peaks Suburban
- Peaks Suburban Add
- Peavy Chase Sub
- Peavy Park
- Peavy Venture
- Pebble Creek
- Pecan Creek Officec Park Condos
- Pecan Crest Rev
- Pecan Drive
- Pecan Heights
- Pecan Plaza
- Pecos Park
- Pemberton
- Pemberton 02
- Pepperwood Estates
- Perry Gilbert
- Perry Haskell
- Perry Haskell Add
- Perry Haskell BLK
- Perry Heights
- Perry Heights Add
- Perry Homes Wycliff Add
- Perry Thomas
- Perry Welborn Add
- Peyton-Alpha Estates
- Pha #1 Add
- Phillipson Hancock & Miller Add
- Phoenix Condos
- Piazza Siena Condo
- Piazza Siena Parking sp 50
- Piazza Siena Parking Sp 59
- Piedmont
- Piedmont 03
- Piedmont 05
- Piedmont Add 02 Instl
- Piedmont Park 01
- Piedmont Park 02
- Piedmont Park 2
- Piedmont Rev
- PJ ALLEN
- Pk Lane
- Place Des Vosges
- Plaza At Cedar Spgs
- Plaza At Turtle Creek
- Plaza At Turtle Creek Residence Ph
- Plaza Condo
- Plaza CONDOMINIUMS
- Plaza Condos
- Plaza Park Townhomes
- Plaza Parks
- Plaza Turtle Creek
- Plaza-Turtle Crk Residences Ph
- Pleasant Forest
- Pleasant Grove
- Pleasant Grove Estates
- Pleasant Heights
- Pleasant Manor
- Pleasant Oaks
- Pleasant Oaks Estates
- Pleasant Valley
- PLEASANT VIEW
- Pleasant View Plantations
- Pleasant Wood
- PLEASANTWOOD
- Pleasantwood 03
- Pleasantwood Add
- POL TERRANCE HEIGHTS
- Polk Terrace
- Polk Terrace 09
- Polk Terrace 10
- Polk Terrace 11
- Polk Terrace 12
- Polk Terrace 14
- POLK TERRACE 1ST INSTALLMENT
- Polk Terrace 6th Inst
- Polk Terrace Heights
- Portico Condos
- Portobello By The Creek
- Prairie Corner Twnhms Bldg A
- Prairie Creek Estates
- Prairie Crk North 01 Ph 01
- Prather & Ardreys
- Prescott Condo 4215 Association
- Prescott Douglas Condo
- Prescott Luxury Condo
- Preshaven Park
- Preston Bend Village Condo
- Preston Bend Village Condos
- Preston Bend Village II
- Preston Bend Village Ph 02
- PRESTON BEND VILLAGE PH II
- Preston Brook Estates
- Preston Club Estates
- Preston Club Estates 3
- PRESTON CLUB ESTATES NO 2
- Preston Creek Rev
- Preston Crest Add
- Preston Del Norte Villas Condos
- Preston Dell Estates
- Preston Downs 03
- Preston Estates
- Preston Gateway
- Preston Gateway Estates
- Preston Green Add Ph I
- Preston Green North Add Ph 02
- Preston Green North Fourth Sec
- Preston Green North Third Sec
- Preston Green Ph 01
- Preston Green PH 1
- Preston Haven Estates
- PRESTON HAVEN ESTATES NO. 2
- Preston Highlands
- Preston Highlands 02
- Preston Highlands Ph II
- Preston Highlands Ph IV
- Preston Hills
- Preston Hills #1
- PRESTON HILLS 2
- Preston Hills Add #4
- Preston Hills Condo Bldg 5
- Preston Hills Condos
- Preston Hills Condos, Bldg. 8
- Preston Hills Estates
- Preston Hilltop Estates
- Preston Hollow Estates
- Preston Hollow Village
- Preston Hollow Village Ph 3
- Preston Hollow Village Ph Three
- Preston Manor Estates
- Preston Manor II
- Preston Mdws Estates 03
- Preston Meadow Estates
- Preston Meadows
- Preston Oaks Crossing Condos 01 & 02
- Preston Oaks Xing Condo Bldg G
- Preston On Creek Condos
- Preston On Lake Condo
- Preston on the Lake
- Preston Park
- Preston Park Square
- Preston Parkside Estates
- Preston Place Twnhms
- Preston Port Estates
- Preston Racquet Club Condo
- Preston Road
- Preston Road Condo
- Preston Road Estates
- Preston Road Highlands
- Preston Road North Estates
- Preston Royal
- Preston Royal 03
- PRESTON SQUARE TOWN HOMES
- Preston Square Twnhms
- Preston Tower Condo
- Preston Tower Condominium
- Preston Tower Condominiums
- Preston Trail Office Park
- Preston Trails
- Preston Trails 6th Sec
- Preston Trails Fairway Phase 1
- Preston Trails Fairways
- Preston Trails Fairways Ph I
- Preston Twnhms
- Preston Valley 02
- Preston Villa
- Preston Village #2
- Preston Village #8
- Preston Village Add
- Preston Village Addition
- Prestonshire
- Prestonshire Estates
- Prestonville
- Prestonville Add
- Prestonway Estates
- prestonwod
- Prestonwood
- Prestonwood #5
- Prestonwood #7
- Prestonwood 03
- Prestonwood 05
- Prestonwood 06
- Prestonwood 19
- Prestonwood 20
- Prestonwood 22 Sec 01
- Prestonwood 22 Sec 2
- Prestonwood 24 Sec. 2
- Prestonwood Add 05
- Prestonwood Country Club Condos
- Prestonwood Creek 02
- Prestonwood Estates
- Prestonwood Estates Sec 05
- Prestonwood Gardens
- Prestonwood Green
- Prestonwood Green Condos
- Prestonwood Hillcrest Twnhs
- Prestonwood Humble
- Prestonwood Rev
- Prestonwood W-Sec3
- Prestonwood West
- Prestonwood West #2-3
- Prestonwood West Sec One Ph III
- Prestonwood West Sec One Ph Two
- Prestwick Manor
- Price Sub
- Primrose Add 1
- Psw Emerald Sub
- Q
- Quail Ridge Condo
- Queen City
- R D Caldwells Add
- R Fenbys
- R Hunnicutts
- R M Hurts
- R.F. Smith
- Rado Add
- Ragsdale
- Randalls Plainview
- Randolph
- Ravenview
- Ravinia Heights
- Ravinia Heights Add
- Ravinia Terrace
- Ravinia Terrace 05
- Rawlins Park Condo
- Rawlins Place Condo 4000
- Raymond P Caruths Resubd
- Real Estate Investment Co Sub
- Reapp-85
- Reaves Place
- Rebecca Briggs Surv Abs #127
- Rector Place
- Rector Place 01
- Rector Place Add 02
- Red Bird Center
- Red Bird Meadows
- Reeves South Side
- Regency Park 2
- Regency Place
- Reifler Leverett
- Reinles
- Remington Park
- RENAISSANCE ON TURTLE CREEK
- Renaissance On Turtle Creek Co
- Renaissance On Turtle Creek Condo
- Renaissance on Turtle Creek Condominiums
- Renaissance Trutle Crk Condo
- Renaissance Way Amd
- Rep Preston
- Residence at Turtle Creek Condo
- Residences
- Residences at Routh Condos
- Residences Bennett Ave
- Residences-Bennett Ave
- Reuss & Wheeler
- Revinin Heights Add
- Revised Richland Square
- Richardson Heights Estates West 03 S
- Richardson Heights Estates West 2n
- Richardson Heights Estates West 3r
- Richardson Heights Estates West 4t
- Richardson Heights Estates West Re
- Richland Corners Rep
- Richland Mdws Add
- Richland Meadows
- Richland Meadows 02 Inst Rep
- Richland Park Apt-Westchase Condo
- Richland Park Estates
- Richland Square
- Richland Trace
- Richland Trace Condo Ph I-Xi
- Richland Trace Condo Ph III
- Richland Trace Condos
- Richmond Hill
- Richmond Lakewood Condos
- Rick & Hurts North Fitzhugh Ave
- Ridge Condos
- Ridgecrest Village
- Ridgewood Park
- Ridgewood Park Add
- Ridgewood Park Add 03
- Ridgewood Park Rev
- RISE AT WOLO CONDOS
- Ritz-Carlton 2
- Ritz-Carlton Residences 1
- Ritz-Carlton Residences Condo In Uptown
- Ritz-Carlton Tower 1
- River Oaks
- River Oaks Condo
- River Oaks Condos
- River Oaks Condos Bldg J
- Riverfront
- Riverset
- Riverway Estates
- Roanoak Grv
- Robert Kleberg Surv Abs #716
- Robert Kleberg Survey Abs 716 cb
- Robertson & Harris
- Robinson
- Rochester
- Rochester Park
- Roehampton Court 01
- Roger Hill Add
- Roland Dale
- Roland Dale Annex
- Roland Dale Rev
- Rolling Creek 01 Inst
- ROLLING CREEK 1ST INST
- Rolling Trails
- ROOSEVELT MANOR 1ST INST
- Roosevelt Manor 2nd Inst
- Roosevelt Manor Add 2nd
- Roosevelt Place
- Roper Heights
- Rosedale
- ROSELAND CONDOMINIUM
- ROSELAND PATIOS CONDOS
- Roseman
- Rosemeade Place
- Rosemont Crest Addition
- Rosenfield & Myers
- Rosetown Rep
- Ross Ave
- Ross Ave Add
- Ross Ave Annex
- Ross Ave Brownstoens
- Ross Ave Brownstones
- Ross Ave Heights
- Ross Ave heights Condominiums
- Ross B Myrick
- Rosser Terrace 01
- Rosser Village Rev
- Row at Belmont Garrett Condo
- Row at Bennett Garrett Condo
- Rowland Heights
- ROXBURY PARK
- Royal and Greenville
- Royal Arms Condominiums
- Royal Arms Condos
- Royal Central Condo
- Royal Chapel Estates
- Royal Creek Acres
- Royal Crest
- Royal Crk Acres Add
- Royal Haven
- Royal Highlands
- Royal Highlands Village
- Royal Highlands Village Rev
- Royal Hills 3rd Inst
- Royal Hills Add 03 Instl
- Royal Hlnds Add 03
- Royal Knoll Condos
- Royal Lane Condo 5800
- Royal Lane Condos 5800
- Royal Lane Highlands
- Royal Lane Highlands Condos
- Royal Lane Hlnds Condos
- Royal Lane Village
- Royal Marsh Estates
- Royal North Estates
- Royal Oaks Condo
- Royal Oaks Park
- Royal Park Estates
- Royal Ridge Add
- Royal Spgs Estates
- Royalhaven
- Royalhaven 02
- Royalhaven Rev
- Russell Realty Co
- Russwood Acres 04 Inst
- Russwood Acres 6th Instl Sec 3
- Rustic Hills
- Rustic Hills Add
- Rustic Hills Rev
- Ruthmede Place
- S D Lawrence
- S E Tubres Resubd
- S W Oram
- S2lock01 Add
- Sabel Ridge Condos Ph 01 06
- Sable Rdg Condos
- Sable Ridge
- Sable Ridge Condos
- Sable Ridge Condos Ph 01-06
- SABLE RIDGE CONDOS PH I-VI
- Saint Andrews
- Saint Andrews 03
- Saint Anne Hills
- Samuel Beeman Estate
- Samuel D Ricketts Survey
- San Jacinto Central Add
- San Jacinto Lawn
- San Jacinto Lawn Rev
- San Jacinto Lofts
- San Jacinto Lofts 02
- San Juan Heights
- Sandhurst Manor
- Sandhurst Plaza Condo
- SANDHURST PLAZA CONDOMINIUMS
- Sandyland Estates
- Santa Fe Street 294
- Santa Monica
- Santa Monica Add
- Saphire
- Sc Galloway Surv Abs 523
- SCHON CENTER
- Schoonmakers Sub
- Schreiber Manor 01 Inst
- Schreiber Manor 03 Inst Rev
- Schreiber Manor 04 Instl
- Schreiber Manor 06 Instl
- Schreiber Manor 1st Instl
- SCOTTY\’S GOLF PAR
- Scruggs
- Scurry
- Se Skinners Sub
- Seagoville Heights
- Seagoville Villas
- Seagoville Villas #3
- Seagoville Villas 2
- Seagoville Villas Ph 02
- Seale-Willomet Add
- Second Ave
- Second Instl Kessler Woods
- Second Instl Midway Hills 04
- See Tax
- Sereno Oaks at Buckner Terrace
- Seymour Place
- Shady Hills
- Shady Hills 2nd Sec
- Shady Hollow
- Shady Hollow Estates
- Shady Hollow Twnhs Condo
- Shady Lane
- Shady Oaks Estates
- SHADY OAKS ESTATES PH 3
- Shady Trail Bus Condos
- Shady View Park
- Shadywood Estates
- Shalimar At Preston Trails
- Shamrock
- Shamrock Shores
- Shamrock Shores 02
- Shamrock Shores Add
- Shannon Estates
- SHEA MED DISTRICT CONDOS
- Sheffield School Add
- Shelby Condo 2727
- Shelby Place Condo
- Shelby Residences
- Shelby Residences Bldg
- Shelby Street Twnhs
- Shelton Condo
- Sherman Twelfth Street Add
- Shiloh Park
- Shiloh Park 02
- SHILOH PARK NO 2
- Shiloh Terrace 03
- Shore Crest Terrace
- Shore Crest Terrace Add
- Shorecrest Terrace Add
- Sierra Way 02
- Silver Meadow Terrace
- Silvertree Square
- Singing Hills
- Singing Hills-Symphony
- Sixty Forty Place Condo
- Sjb Add
- Skillman Bend Condo
- SKILLMAN BEND CONDOMINIUM
- Skillman Heights
- Skyline Condominiums
- Skyline Heights
- Skyline Heights Add
- Skyline Heights Rev
- Skyline Hts Add
- Skyline Park 02
- Skyline Ph 01 Comm Unit Dev
- Skyline Ters
- SMAA
- Small Woods
- Smallwoods
- Smith Elkins Abst 430 PG 325
- Smith L R
- Sndhurst Manor
- Soco Urban Loft Condo
- Soco Urban Loft Condos
- SoHo Square
- Soho Square Ph 1
- Solomon Carver Surv Abst #260
- Somerset Heights
- Sorrento
- Sorrento Condo
- South Cliff Heights Add
- South Lawn
- South Marsalis Park Add
- SOUTH OAK
- South Park
- South Park Add
- South Side
- South Tower Residences
- Southcliff Heights
- Southern Crest
- Southern Hills
- SOUTHERN TERRACE
- Southgate 01
- Southgate 03
- Southgate Annex 01 Rev
- Southgate Annex 02
- Southgate Anx 02 Instl 02
- Southgate Grove
- Southgate Manor
- Southland
- southpark
- Southside Place Add #1
- Southside Place Add 1
- Southside Place Add 2
- Southwell Bus Condos
- Southwood Estates
- Sparkman Club Estates
- Sparkman Estates
- SPARKMAN ESTATES 1ST INST
- Sphinx Fiji Ph 2 Add
- Sphinx Fiji Phase 2
- Spring Creek
- SPRING CREEK 4TH
- Spring Crk Add
- Spring Crk Add 03
- Spring Dell
- SPRING VALLEY PARK
- Spring Valley Park 02
- Spring Valley Park 03
- Spring Valley Park 03 Inst Sec 02
- SPRING VALLEY PARK NO 2
- Spring Vly Park Add 02 Instl
- Springdell Add
- Springmont Condo Ph 01-04
- Springmount Condos
- Springstead Condos
- Springtree Add
- Springtree Crossing Condos
- St Andrews
- St Augustine
- St Augustine Add
- St Augustine Highlands
- St Augustine Park Estates
- ST AUGUSTINE PARK ESTATES NO 2
- St Augustine Twnhms
- St Augustine Twnhms 02
- St Francis Place
- St Francis Place 02
- St Michaels Court
- St Temple
- Standleys Rev
- Starr Row
- State Clark Add
- State-Worthington Twnhms Add
- Steinmans Add
- Stellar Court
- Stellar Estates
- Stemmons
- Stephani Add
- Sterling Bowser
- Sterling Knight
- STEUERWALDS
- Stevens Park
- Stevens Park Estates
- Stevens Park Village
- Stevens Park West Add 2
- Stevens Park West Rev
- Stevens Twnhms
- Stevens Village Add
- Stevens Wood
- Stiffler Add
- Stonebriar Court
- Stonebridge Terrace
- Stonegate At Forest Hills
- Stonegate Forest Hills Add
- Stoneleigh Residences
- Stoneport Villas
- Stones Throw Condo
- Stonewall Terrace
- Stratford At Lakewood
- Stratford At Lakewood Condos
- Stratford At Lakewood Condos Amd
- Streetlights at Carlisle
- Strickland & Wells
- Strickland Acres
- Strong & Crossen
- Studio 02 Condos
- Studio Condo 11
- Studio East Condo
- Stults Road
- Suburban Home
- Sugarberry Hill
- Sullivan Gilbert Condos
- Sullivan On Gilbert Condos
- Summerset Village Condo
- Summerset Village Condominimums
- Summit Ave Condos
- Summit Lawn
- Summit Parc Ph 03
- Summit Parc-Phase 4
- Sun City Center.
- Sunnybrook Estates
- Sunnyside
- Sunnyvale
- Sunrise Heights Annex
- Sunrise Slope 2nd Inst
- Sunrise Slope 2nd Instl
- Sunset
- Sunset Acres
- Sunset Annex
- Sunset Crest
- Sunset Heights
- Sunset Hill
- Sunset Hill Add
- Sunset Hill Rev
- Sunset Hill Rev Add
- Sunset Hills Rev
- Sunset Summit
- Sunset View Rev
- Sutton Place Condos
- Swallow Lane Add
- SWANNS J A
- Swansons
- Swiss Ave
- Swiss Ave Limited
- Sylvania Dells Rev
- T J Rodgers
- T L Camps
- T L Camps Resubd
- T&H Intown Add
- Ta Hords Homestead City Bl 34
- Tabor
- Tall Tree Condo
- Tamarack
- Tamarack Add
- Tangelwood
- Tanglewood
- Tanglewood Estates
- Tatum
- Taylor & Lowrance
- Taylor & Wilsons
- Taylor&Wilsons
- TBD
- Teagarden Place
- Tealwood On The Creek Condo
- TEALWOOD ON THE CREEK CONDOMINIUM
- Tealwood On-The-Creek Condo
- Tealwood-On-The-Creek Condo
- Tenison Village
- Tenison Vlg at Buckner Terrace
- Tenison Vlg Buckner Ter
- Terminal Katy Trl Residential
- Terrace Bldg H
- Terrace Condo
- Terrace Condos
- Terrace Home
- Terraces The Trail
- Terry Heights
- Terry Heights Add
- Tetrakem Village Rev
- The Abbey on Preston
- The Cedars
- The Colonade at Turtle Creek
- The Compound Condominiums
- The Deere Street Collection
- The Enclave at 10th Street
- The gates at Preston Hollow
- The House
- The House Condos
- The Inwood and Walnut Hill Addition
- The Novela
- The Park Highlander
- The PARKS ON TRAVIS CONDOS
- THE PLAZA CONDOMINUMS
- The Renaissance
- The Renaissance on Turtle Creek
- The Residences at The Highland
- The Shelton
- The Victor Dallas
- The Villa Sub
- THE VILLA SUBDN
- The Villas Of Midway
- THE WARRINGTON
- THE WOODS 1ST SEC REV
- Thicket Condos
- THIRTY ONE DALLAS SQUARE
- Thirty One Dallas Square #1
- Thirty Thirty Bryan Condo
- Tholl F J
- Thomas
- Thomas Maple Avenue
- Thompson
- Thompsons & Swansons
- Thornton Heights
- Thornton Heights Add
- Three Galleria Tower
- Three Holland Place Condo
- Throckmorton Condo 3907
- Throckmorton Condos
- Throckmorton Hall
- Throckmorton Place Condo
- Tiffany Trails Condos
- Tiffany Trials Condos
- Timberbrook 02
- Timberbrook 3rd Instl
- Timberbrook 4th Inst Rev
- Timberbrook Add 02 Instl
- Timberlake Gardens
- Timberleaf Lane Twnhms
- TIMON BOLL
- Tioga East Add Ph 02
- Tioga East Ph 02
- Tioga East Ph 03
- Tipton
- Tipton Annex 02
- Tiptons 03
- TJ RODGERS
- TJ ROGERS
- Tolan Finding Mora Add
- Tom Russells
- Tomson Twnhs
- Topaz Twnhms Condo
- Topaz Twnhms Condos
- Toungate Acres
- Tower & Regency Row Residence
- Tower & Regency Row Residence Condo
- Tower & Regency Row Residences
- Town Creek
- Town Creek Add
- Town Creek Add Sec 01
- Town Crk Add Sec 03
- Town North Estates
- Town North Twnhs
- Town Oak
- Town Oak Cliff
- Town Rylie
- Towneoaks Terrace Condo
- Towneoaks Terrace Condominium
- Townhouse Condo
- Tr 1 Abstract 8768
- TR 22
- TR 4 71X209X220 AVE B AND CREEK
- TR 78.1
- Travenio Revision Add
- Travis At Knox Condo
- Travis Ave Condo 4231-4233
- Travis Knox Condos
- Travis Street Condos 4100
- Travis Terrace City Homes
- Travis Twnhms 4242
- Travis Twnhms Add
- Treetops 02 Condos
- Treetops Ph 02
- TREETOPS PHASE II
- Trehan Chippewa
- Trellis Court Add
- Tribeca
- Tribeca Condos
- Trinity Bluff
- Trinity Forest Condos
- Trinity Forest Estates
- Trinity Gates Add Ph 2
- Trinity Green Ph 1
- Trinity Green Ph 2
- Trinity Heights
- Trinity Heights #3
- Trinity Heights 01
- Trinity Heights 03
- Trinity Heights Add
- Trinity Heights Add 02
- Trinity Heights Add 03
- Trinity Heights Annex
- Trinity Indust District
- Trinity Indust District Rev
- Trinity Meadows
- Trinity Meadows Condos
- Trinity Presbyterian Ch Site
- TRINITY ROYAL
- Trinity Royal Condos
- Trinity Ters Add
- Trinity Townhomes 2
- Trinity Twnhms #2 Add
- Trinity Valley Rev
- Trintiy Meadows Condo
- Trinty Meadows Condo
- TRS 126-128
- Trutle Crk Condo
- Tucker
- Tucker Heights
- Turle Crk Condo
- Turtle Creek
- Turtle Creek Bend
- Turtle Creek North
- Turtle Creek Park Rev
- Turtle Crk North Condo
- Tuscan Villas
- Tuscany Condos
- Twelve Thousand
- Twenty 01 Hundred
- Twenty 01 Turtle Creek Condo
- Twenty 01 Turtle Creek Condos
- Twenty 1 Turtle Crk
- Twenty 1 Turtle Crk Condo
- Twenty One Hundred
- Twenty-One Turtle Creek Condo
- Twenty-One Turtle Creek Condos
- Twin Creek Collection
- Twin Creek Collections
- Twin Creek Estate 1
- Twin Creek Estate 2
- Twin Creek Estate 2-B
- Twin Sixties Rev 02
- Twnhms 4111
- Two holland place
- Two Holland Place Condo
- TYPO TOWNS
- U R C Add
- Underwood Estates
- Undetermined
- Union Dallas Master Condominium
- Unity Estates
- University Blvd Terrace
- UNIVERSITY BOULEVARD TERRACE
- University Crossing
- University Crossroads 01 & 02
- University Crossroads 1 & 2
- University Crossroads Condo
- University Manor
- University Manor Add
- University Place
- University Place Add
- University Place Add Ph 1
- University Place Add Ph 2
- University Place Add Ph 3
- University Place Add Ph 4
- University Place Add Ph 5
- University Place Addition Phase 5
- University Place Condo
- UNIVERSITY PLACE PH 3
- UNIVERSITY TERRACE
- University Terrace Add
- University Terrace Rev
- University Terrace Rv Bld D5
- University Terrance Add
- Uptown Thomas Condo Bldg 2
- Urban Commons
- Urban Place 1 Add
- Urban Reserve
- Urban Reserve Add An Add
- Urban View
- Urban View Condos
- Urban Villas 02
- Urban Woods On Commerce Ph 01
- Urbandale
- Urbandale 01
- Urbandale 01 Instl Cb 5823
- Urbandale Heights
- URSULA LN
- Val E Winstons
- Vallera Condo
- Valley Ridge
- Valley View Condo Ph 01 & 02
- Valley View Condos
- Vendome On Turtle Creek
- Vendome On Turtle Creek Condo
- Venetian
- Veneto 01 Condo
- Veneto I
- Veneto I Condos
- Veranda
- Veranda 2
- Versaille Condo
- Versailles Pkwy Rev
- Versailles Pkwy Sacher
- Vickery
- Vickery Park
- Vickery Place
- Vickery Place Add
- Vickery Village Condo
- Vickery Village Condos
- Victoria At Oram 02
- VICTORY GARDENS
- Victory Gardens #3
- Victory Gardens 02
- Victory Gardens 03
- Victory Gardens 04
- Victory Gardens 05 Sec 02
- Victory Gardens 5
- Victory Gardens No. 3
- Views At Newton Condos
- Villa Capri Condo
- Villa Capri Condominium
- Villa De Royale
- Villa Del Mar Estates
- VILLA MUNGER 5004 WORTH ST CONDO
- Villa Royale Condo
- Villa Serena Condos
- Village By The Creek
- Village Fair 07 02 Instl
- Village Fair Shopping Center
- Village Oaks Condo
- Village Of Runyon Spgs
- Village Of Runyon Springs
- Village Runyon Spgs
- Villages At Frankford 01
- Villages At Frankford Ph I
- Villages At Frankford Ph III
- Villages At Frankford Ph V
- Villas At Ash Creek
- Villas By West Village
- villas cando at pkwy village
- Villas Condo At Pkwy Village
- Villas Lk Hlnds 2 Add
- Villas Lk Hlnds Add
- Villas Of Bryan Place
- Villas Of Commerce
- Villas Of Midway Ph Two
- Villas Prairie Crk Add
- Villas-Prairie Crk
- Vine Condo
- Vine Condominiums
- Vine Lane Place
- Virginia Ave Condo
- Virginia Ave Condos
- Vista Real Ph 02
- W C Doerings 2nd Add
- W G Bowlings
- W H Jones White Rock Heights
- W H Mcgraw
- W H Steele & W H Wood
- W J Keller Homestead
- W L Diamond Ewing Ave
- W Residences
- W Residences North Tower
- Waggoner Place
- WAGGONER PLACE BROOKSHIRE
- Wahhoo & Jas J Collins
- Wahooo Pkwy
- Walkers
- Walling-Northwest
- Walling-Northwest Add
- Walnut Creek Estates
- Walnut Crest
- Walnut Gardens
- Walnut Gardens Rev
- Walnut Grove
- Walnut Hill
- Walnut Hill Estates
- Walnut Hill Highlands 02
- Walnut Hill North 03
- Walnut Hill North Sec 02
- Walnut Hill Park
- Walnut Hill Park 02
- Walnut Hill Park Add
- Walnut Hill Ridge
- Walnut Hill Ridge Add
- Walnut Hills 2nd Inst
- Walnut Hills 3rd Inst
- Walnut Hills 4th Inst
- Walnut Mdws
- Walnut Preston
- Walnut Woods
- Walnut Woods Add
- Walton Street Studios
- Warrington
- Washington Street Twnhms
- Webster & Boedekers
- Webster & Woods North Park
- WEBSTER & WOODS NORTH PARK BLK
- Webster Grove
- Websters South Dallas
- Wedglea Creek
- Wedglea Creek Condos Ph 01-02
- Wedglea Creek Condos Ph01-02
- Wedglea Crk Condos Bldg A
- Wedglea Manor Condos
- Wedglea Place Condo
- Weisenberger
- Weisenberger Gardens
- Weisenberger Gardens 02 Instl
- Weisenberger Lucky 07
- WEISENBERGER LUCKY SEVEN
- Welch & Reynolds
- Welch Reynolds
- Wellington Farms
- Wellington Farms Ph 1
- Wellington Farms Ph 1 City Bl
- Wellington Farms Ph 1 Ncb 8816
- Wenger-Snyder Amd
- West 9th Residences
- West Cliff
- West Hp Dorothy Add
- West Jefferson Add
- West Love Field Submarket
- West Rdg Park Sec 4
- West Ridge Park
- West Side At State Thomas Condos
- Westbury Park Condo
- Westbury Park Condos
- Western Hills
- Western Park
- Westglen Park 01
- Westglen Park 02
- Westglen Park Add Un 01
- Westglen Park No 2
- Westhaven
- Westlake Park
- Westmoreland Estates
- Westmoreland Heights
- Westmoreland Heights Add 02
- Westmoreland Park
- Westmoreland Park 03
- Westmoreland Park Add 3
- Westmount
- Westridge Park
- Westridge Park #10
- Westside Condos
- Westwood
- Westwood 01
- Westwood 02
- Westwood No 2
- Westwood Park
- Westwood Park Add
- Wettstein
- WHEATLAND HILLS
- Wheatland Meadows Ph 02
- Wheatley Place
- Wheatley Place Add Bl
- Wheeler & Reuss Eagle Ford
- Wheeler & Reuss Eagle Ford Add
- Whispering Hills
- Whispering Hills Rep
- WHISPERING SPRINGS CDA, BLK 25 8760, LOT 5
- WHITE ROCK BLUFFS
- White Rock Forest Add
- White Rock Forrest
- White Rock Forrest 02
- White Rock Highlands
- White Rock North
- White Rock North 01
- White Rock North 02
- White Rock North 11 Instl
- White Rock North 6th Inst
- WHITE ROCK TRAIL
- White Rock Village 01
- White Rock Village 02
- White Rock Villas
- White Rock West Condo
- Whiterock West Condo
- Whiterock West Condos Bldg J
- Wiley & Bosco
- Wilhurt Add Cb 108617
- Wilhurt Adition
- Wilkes Resub
- William T Stewart
- Williams Caruth Terrace 01 Instl
- Williams Eric
- Williams-Caruth Terrace
- Williamsburg
- Williamsburg 01 Condo
- Williamsburg 01 Condos
- Williamsburg 02 Condo
- Williamsburg 1 Condos
- Williamsburg Condo Ph 01
- Williamsburg Condo Ph 02
- Williamsburg Condo Phase 02
- Williamsburg Square
- Williamson-Caruth Terrace 4
- WILLOW BRIDGE-LINCOLN
- Willow Greene
- Willow Park Condo Add
- Willow Wood Condos
- Wilshire Heights
- Wilshire Heights #5
- Wilshire Heights 03
- WILSHIRE PARK
- Wilshire Summit
- Wilson Estates 02
- Wilson S
- Wilsons
- Winchester Place
- Winchester Place Add
- Winchester Place Rev
- Wind Rdg Ph 01
- Wind Ridge Ph 01
- Wind Ridge Ph 02
- Windsor Park 03
- Windsor Park 04
- Windsor Park 06
- WINDSOR PARK REV
- Windsor Park Sec 03
- Windsor Place
- Windtree Condo Bldg F
- Windtree Condos
- Wingate Condo
- Wingate Condominiums
- Winnetka Heights
- Winnetka Heights Add
- Winnetka Summit
- Wisdom Crk Ph 02
- Wisdom Crk Ph 1
- Wisdom Crk Ph II
- Wisdom Terrace Ph 01
- Wisdom Terrace Ph 02
- Wisdom Terrace Ph 03
- Wisdom Terrace Ph 04
- Wisdom Terrace Ph 05
- Wm Freemans Sub
- Wm Saffer
- WOODACRES CORNER
- Woodberry Creek
- Woodbridge 01 02 Rep
- Woodbridge 02
- Woodbridge 03
- Woodbridge 04 Rep
- Woodbridge Add 03
- Woodbridge ADD 2
- Woodcrest
- WOODHAVEN
- Woodhaven Condo
- Woodhaven Condos At Prestonwood
- Woodland Canyon
- Woodland Park Sec 06
- Woodland Terrace
- Woodlands 01 On Creek
- Woodlands Ii Crk
- Woodlands On The Creek 02
- Woodlawn Annex
- Woodlawn Place Rev
- WoodPark Lane Condos
- Woodridge Condos
- Woods
- Woods 08
- Woods 11
- Woods 1st Sec
- Woods On Park Lane
- Woods On Park Lane Condo
- Woods On Park Lane Condos
- Woods Park Lane Ph 01
- Woods Rev
- Woods Sec 02
- Woods Sec 11
- Woodshire Court Condo
- WOODSHIRE COURT CONDOS
- Woodvale
- Woodway Park Add
- World Plaza Condo
- Worthington Corners
- Wrens Sub
- Wright Farm PH 3
- Ws Beatty Surv Tract 14
- Wycliff Heights Condo
- Wycliff Place Condo
- Wyndemere Condo
- Wyndemere Condos
- Wynnewood
- Wynnewood 04 2nd Inst
- Wynnewood 05
- Wynnewood 2nd Sec
- Wynnewood 6th Sec
- Wynnewood Add 2nd Sec
- Wynnewood Hills
- Wynnewood Park 01
- Wynnewood Park 03
- yes
- Yins
- Z E Coombs West End
- Zang S Crystal Hill
- Ze Coombs West End Add To The
Market Summary
Property Summary
- Located in the Heights Macarthur subdivision, 3343 Bataan Street Dallas TX is a Land for sale in Dallas, TX, 75212. It is listed for $235,000 and features 0 acres. To schedule a showing of MLS#21121854 at 3343 Bataan Street in Dallas, TX, contact your Aaron Layman Properties agent at 940-209-2100.

3343 Bataan Street
Dallas, TX




