Location
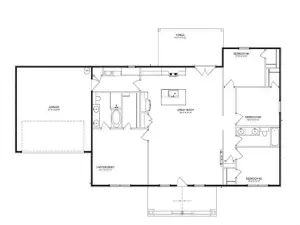
Proposed new construction Barndominium by Red Oak Custom Builders, conveniently located right across from Merkel schools. Wonderful open floorplan with 3 Bedrooms & 2 Bathrooms built on a 9ft plate. Builder’s plans for the home – Electric FP in living room, kitchen to have painted cabinetry, granite on counters, gorgeous walnut butcher block on island, & SS appliances (range, microwave, dishwasher). Spacious utility room. The primary bedroom ensuite has a tub, separate tiled shower, and 2-sink vanity with granite counters. LVP flooring in main living areas, carpet in bedrooms. Foam insulation. Class 4 metal roof. Great covered porches, front & back. Metal privacy fence. Landscaping to include sod in front & back and two trees, one in front, one in back. Wise camera system with 2 cameras & ring doorbell. Builder warranty. Builder’s finish out plans may change and-or buyer has the opportunity to choose finishes and make some changes at this point, within builder’s allowances. Note: Lot size approx since this is part of a larger lot. All room sizes approximate.
Property Details
Price:
$305,000
MLS #:
21181014
Status:
Active
Beds:
3
Baths:
2
Type:
Single Family
Subtype:
Single Family Residence
Subdivision:
City of Merkel
Listed Date:
Feb 16, 2026
Finished Sq Ft:
1,664
Lot Size:
10,236 sqft / 0.24 acres (approx)
Year Built:
2026
Schools
School District:
Merkel ISD
Elementary School:
Merkel
Middle School:
Merkel
High School:
Merkel
Interior
Bathrooms Full
2
Cooling
Ceiling Fan(s), Central Air, Electric
Fireplace Features
Electric, Living Room
Fireplaces Total
1
Flooring
Carpet, Luxury Vinyl Plank
Heating
Central, Electric
Interior Features
High Speed Internet Available, Kitchen Island, Open Floorplan, Pantry, Walk- In Closet(s)
Number Of Living Areas
1
Exterior
Construction Materials
Metal Siding
Exterior Features
Covered Patio/Porch
Fencing
Back Yard, Fenced, Metal, Privacy
Lot Size Area
0.2350
Financial

See this Listing
Aaron a full-service broker serving the Northern DFW Metroplex. Aaron has two decades of experience in the real estate industry working with buyers, sellers and renters.
More About AaronMortgage Calculator
Similar Listings Nearby
Community
- Address1506 S 5TH Street Merkel TX
- SubdivisionCity of Merkel
- CityMerkel
- CountyTaylor
- Zip Code79536
Subdivisions in Merkel
- A0164 150 DEWITT,
- A0406
- A0422 55 T and P-18 Tract 3
- A1545 SUR 60 T & P
- Boyce
- Boyce Of Merkel
- City of Merkel
- College Of Merkel
- Dewitt
- Edminson\’s Sub
- G W Penny
- Godwin Sub
- Green Acres
- Green Acres Sub
- Grimes Cnty Sch Lands League
- Grimes County
- Grimes CSL
- GW PENNY
- Hegwood Hill
- Herring Of Merkel
- Kelley Sub – Merkel
- Merkel ISD
- Merkel ISD Rural Abstracts
- Merkel West
- Miller Add Of Merkel
- Mulberry Creek Estates
- Mulberry Tract Sub
- Mulberry Tracts Sub
- North 707 Ranchettes Sub
- NW Taylor County
- Original Town Merkel
- Pleasant Valley
- Porter Heights Of Merkel
- Quail Country Sub 16
- R A Miller Of College – Merkel
- rural
- SHAPPARD 2ND OF MERKEL
- Sheppard
- Sheppard 1st Of Merkel
- South Park Merkel
- Sp Rr Company Surv Sec 13
- STORY OF MERKEL
- T & P RY CO
- T&P
- Taylor Ridge Estates
- W.H. Brown
- Walt Kings Sub
Market Summary
Current real estate data for Single Family in Merkel as of Apr 27, 2026
31
Single Family Listed
100
Avg DOM
237
Avg $ / SqFt
$505,870
Avg List Price
Property Summary
- Located in the City of Merkel subdivision, 1506 S 5TH Street Merkel TX is a Single Family for sale in Merkel, TX, 79536. It is listed for $305,000 and features 3 beds, 2 baths, and has approximately 1,664 square feet of living space, and was originally constructed in 2026. The current price per square foot is $183. The average price per square foot for Single Family listings in Merkel is $237. The average listing price for Single Family in Merkel is $505,870. To schedule a showing of MLS#21181014 at 1506 S 5TH Street in Merkel, TX, contact your Aaron Layman Properties agent at 940-209-2100.

1506 S 5TH Street
Merkel, TX




