Location
WELCOME TO 1013 GLEN CHESTER DRIVE, FLOWER MOUND, LOCATED IN WOODLAKE ESTATES! TOP 10 RATED BIKE AND WALKING TRAIL SYSTEM, SEE MAP ON NTRIES*ACCESS TO CORP OF ENGINEER PROPERTY, 10 MINUTE WALK TO LAKE GRAPEVINE*WATCH THE FIREWORKS AT JULY 4TH FESTIVITIES*SPLASH IN THE INVITING POOL WITH CHILD SAFETY GATE*PRIVATE BACKYARD WITH EXTRA TALL PRIVACY FENCE* LOVELY LANDSCAPING, FLOWER BEDS & RETAINING WALL*PAVESTONE PAVER & AGGREGATE CONCRETE DECKING*FRENCH DRAIN SYSTEM*OFFICE OR ALTERNATE 5TH BEDROOM LOCATED TO THE RIGHT OF THE ENTRY AND ADJACENT TO A DOWNSTAIR BATH*THIS WOULD MAKE A GREAT IN LAW SUITE IF NEEDED*THIS ROOM IS CURRENTLY SET UP AS AN OFFICE WITH BUILT IN DESK, CUSTOM CABINETRY & 2 ACCESS DOORS*THIS IS A FLEX SPACE THAT COULD BE UTILIZED FOR MANY DIFFERENT USES, INCLUDING GAMING ROOM, EXERCISE, ROOM OR STUDIO*KITCHEN IS EQUIPPED WITH A 4 BURNER GAS COOKTOP, DOUBLE WALL OVENS, DISHWASER, MICROWAVE, 42 INCH CUSTOM CABINETRY, ISLAND WITH ELECTRIC PLUG OUTLETS AND 2 SECTION STAINLESS SINK*THE LIVING FEATURES HARDWOOD FLOORING AND A WOOD BURNING FIREPLACE WITH BUILT INS ON EACH SIDE*THERE IS A WALL OF WINDOWS OVERLOOKING THE BACKYARD*THE FORMAL DINING ALSO FEATURES HARDWOOD FLOORING WITH PICTURE FRAME MOLDING*THE PRIMARY ENSUITE WAS REMODELED IN 2021 AND HAS QUARTZ COUNTERS, 2 UNDERMOUNT SINKS, AN UPGRADED SHOWER WITH GLASS SURROUND, WHITE CABINETRY, A WALK IN CLOSET AND A STAND ALONE TUB*ENJOY THE GAME-MEDIA ROOM ON THE 2ND LEVEL AS WELL AND 3 BEDROOMS AND 2 BATHS*THE GARAGE IS OVERSIZED AND WOULD ACCOMMODATE A LARGE VEHICLE*UPDATES INCLUDE NEW PELLA WINDOWS REPLACED IN 2022, HVAC REPLACED IN 2021 WITH 12 YEAR WARANTY (BY STRITTMATTER)-DAIKIN SYSTEM WITH BLUETOOTH CONNECTIONS, CARPET REPLACED ONLY 2 MONTHS AGO, NEW INTERIOR PAINT JANUARY 2026*NATURAL GAS AVAILABLE FOR FURNACE, WATER HEATER AND GAS COOKTOP*SPLIT BEDROOMS*
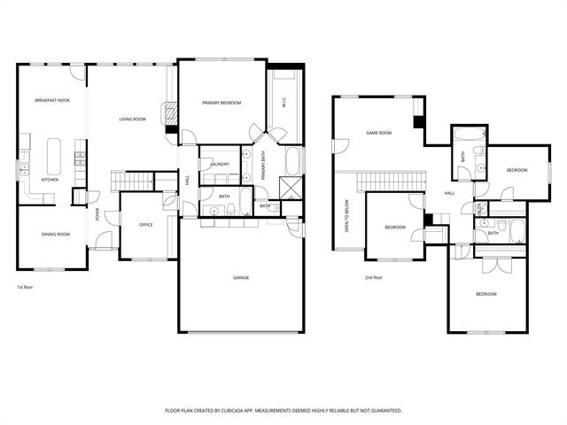
SEE VIRTUAL TOUR, AMENITIES ROOM BY ROOM LIST, AERIALS, FLOOR PLAN & HIGH-DEFINITION PHOTOS ON NTREIS TRANSACTION DESK
SEE VIRTUAL TOUR, AMENITIES ROOM BY ROOM LIST, AERIALS, FLOOR PLAN & HIGH-DEFINITION PHOTOS ON NTREIS TRANSACTION DESK
Property Details
Price:
$679,000
MLS #:
21163054
Status:
Active
Beds:
5
Baths:
4
Type:
Single Family
Subtype:
Single Family Residence
Subdivision:
Woodlake Estates
Listed Date:
Jan 29, 2026
Finished Sq Ft:
2,840
Lot Size:
8,537 sqft / 0.20 acres (approx)
Year Built:
1994
Schools
School District:
Lewisville ISD
Elementary School:
Old Settlers
Middle School:
Shadow Ridge
High School:
Flower Mound
Interior
Bathrooms Full
4
Cooling
Ceiling Fan(s), Central Air, Electric
Fireplace Features
Wood Burning
Fireplaces Total
1
Flooring
Ceramic Tile, Wood
Heating
Central, Natural Gas
Interior Features
Built-in Features, Flat Screen Wiring, High Speed Internet Available, Walk- In Closet(s)
Number Of Living Areas
2
Exterior
Community Features
Jogging Path/Bike Path
Construction Materials
Brick
Exterior Features
Dog Run
Fencing
Wood
Garage Spaces
2
Lot Size Area
0.1960
Pool Features
Gunite, In Ground, Pool Sweep
Financial

See this Listing
Aaron a full-service broker serving the Northern DFW Metroplex. Aaron has two decades of experience in the real estate industry working with buyers, sellers and renters.
More About AaronMortgage Calculator
Similar Listings Nearby
Community
- Address1013 Glen Chester Drive Flower Mound TX
- SubdivisionWoodlake Estates
- CityFlower Mound
- CountyDenton
- Zip Code75022
Subdivisions in Flower Mound
- A0231A J Clark
- A0399A J. EDMONSON, TR 2, .9677 ACRES, OLD DCAD TR
- A0538A
- Adams Estates
- Allison 2 Add
- ALLISON2
- Bakers Branch Estates
- Bella Lago
- Belmont At Bridlewood
- Bentley Woods Add Ph A
- Bolo Point
- Bradford Park Ph 1
- Bridlewood Farms
- Bristol Place At Bridlewood
- Brookstone Add
- Cannon Add
- Canyon Falls
- Canyon Falls Ph 1
- Canyon Falls Village
- Canyon Falls Village 10a
- Canyon Falls Village 10b
- Canyon Falls Village 13
- Canyon Falls Village 14
- Canyon Falls Village 6a
- Carriage Glenn At Bridlewood
- Cedar Bluff Ph 1
- Cedar Buff PH 2
- Cedar Creek Add
- Chateau Du Lac Ph I
- Chaucer Estates Ph 1
- Chaucer Estates Ph 2
- Churchill Crossing Ph A
- Country Meadow Add Ph II
- Coventry At Bridlewood
- Coventry At Bridlewood Ph II
- Coventry At Bridlewood Ph III
- Creek Wood Add Ph 1
- Creek Wood Add Ph 2
- Creek Wood Addition
- Creekside At Cross Timbers
- Dixon Estates
- Dominion Estate
- Edwin Marsh
- Egbert-Buehler Add
- Emerald Bay
- Estancia Estates
- Estates At Creekwood III Ph 1
- Estates Of Flower Mound
- Fallbrook Add
- Fieldcrest Add
- Flower Mound Church Of Christ
- Flower Mound Riverwalk
- Flower Mound Woods
- Forest Hill Estate
- Forest Park Estates
- Forest Vista Estates
- Foxborough Hollow
- Franklin Hills
- Glenwick Estate Ph 1
- Glenwick Estate Ph 2
- Grand Park Estates
- H Murphy
- Hearthstone At Firewheel
- Hidden Valley Country Estates
- Highland Court
- Highland Oaks
- Hillcrest At Wellington Ph 1
- Hillcrest At Wellington Ph 2
- Hillside Of Flower M
- Hilltop Estate Ph 1 Lewisville
- Hilltop Estate Ph 2 Lewisville
- Hilltop Estate Ph 3
- Hunters Glen
- J Clark
- J Stewart
- J Wizwell
- Lake Bluff
- Lake Bluff Sub
- LAKE BLUFF SUBD
- Lake Forest Add
- Lake Forest Add Ph 1
- Lake Forest Add Ph 2
- Lake Forest On The Creek
- Lake Forest Ph 2
- Lake Forest Ph 2 North
- Lake Shore Add
- Lakemont Add
- Lakeshore Terrace
- Lakeside Crossing Town Homes
- Lakeside Ph 3
- Lakeside Ph III
- Lakeside Ph One
- Lakeside Ph Three
- Lakeside Ph Two
- Lakeside Tower
- Lakeside Village
- Lakeside Village Phase 1
- Lakeview Estates 2
- Lakeview Estates Lewisville I
- Lexington Downs At Bridlewood
- Lexington Glen
- Lost Creek
- M J Owen
- Magnolia Park
- Mccall Add
- Mcgowan & Pitcock
- Mckamy Creek
- Meadows At Cross Timbers
- Montalcino Estates Ph 1
- Montalcino Estates Ph 2
- MONTALCINO ESTATES PHASE 2
- Morriss Commons Add
- N E Thompson
- North Lake Highlands
- Northlake Estates
- Oaks Of Lake Forest
- Oaks of Lake Forrest
- Oakwood Estates
- Oakwood Estates Lewisville
- ONE PLACE PH 1
- One Place Ph 2
- Orchard Flower Ph 1
- Ow Harris
- P Malone
- Parkmont Place
- Pecan Acres
- Pecan Meadows Add
- Pepper Creek Ranch Add
- Point Noble
- Prairie Creek
- Prairie Creek Add Ph 2
- R Baker
- Red Bud Point
- Remington Park At Bridlewood
- Riverside Point
- Roanoke Hills
- Rustic Timbers Ph 1
- Rustic Timbers Ph III
- Saddle Oaks Add
- Saddlewood Add
- Sanctuary Add
- Shadow Ridge Ph 1
- Shadowridge South Ph 1
- Shady Point Acres
- Sherwood Estate
- Sherwood Estate IV
- Sherwood Estates II Ph A & B
- Southgate Condos
- Southpoint Addition
- Stafford Estates Ph I
- Staton Oak Estates
- Stone Creek Add Ph 1
- Stone Creek Add Ph 2
- Stone Creek Add Ph 3
- Stone Hill Farms Ph 1, 2 Sec I
- Stone Hill Farms Ph 3 A
- Stone Hill Farms Retail Add
- Stone Hill Farms Sec 2
- Stone Hill Farms Sec 4 Ph I
- Stone Hill Farms Sec 4 Ph II
- Sunset Point at Twin Coves
- T & Prr
- Tanglewood Park Office Condomi
- Tealwood Oaks Ph 1
- Tealwood Oaks Ph 2
- Terracina Ph II
- Terracina Ph III
- The Enclaves At Chateau Du Lac
- The Estates At Tour 18 Sec 1
- The Estates At Tour 18 Sec 2
- The Estates At Tour 18 Sec 3
- THE FORUM RESIDENTIAL
- The Forums Residential
- The Landing
- The Peninsula At Twin Coves Ad
- The Pinnacle At River Walk
- The Reserve At Bridlewood
- The Reserve At Creekside
- THE RESERVE AT HICKORY SPRINGS
- The River Walk At Central Park
- The Village At Lake Bluff
- The Villages Of Northshore Ph
- The Vineyard
- The Woods at Lake Forest
- Thorn Hill Add Ph 1
- Timber Creek Park Add Ph 1
- Timber Creek Park Add Ph 3
- Timber Creek Park Add Ph 6
- Timber Creek Park Add Ph 7
- Timbercreek
- Timbercreek #1
- Timbercreek 2
- Timbercreek Comm #1
- Timbercreek Comm #10b
- Timbercreek Comm #11
- Timbercreek Comm #5
- Timbercreek Comm 10a
- Timbercreek Garden Homes
- Timberview Estate Ph 1
- Timberview Estate Ph 2
- Timberview Estates West Ph 1
- Timberview Estates West Ph 1, 2
- Towne View Estate Ph I
- Towne View Estate Ph II
- Townlake Ph 4
- Townlake Ph Three
- Townlake Ph Two
- Trailwood Ph 1
- Trailwood Ph II
- Triple T Farms
- Twin Cove Estate
- Villages Of Cross Timbers 1
- VILLAS AT SOUTHGATE
- VILLAS AT SOUTHGATE PH 1
- Villas at Southgate Ph 2
- Villas at Southgate Ph 3
- Villas Southgate Ph 1
- Villas Southgate Ph 2
- Villas Southgate Ph Two
- Villas Southgate PH1
- Villas-Southgate Ph 1
- VillasSouthgate
- Walden Creek Estates
- Walnut Grove Add
- Waterford Park Estates Ph 1
- Waterford Park Estates Ph 2
- Wellington Estates Ph 1b
- Wellington Estates Ph 1c
- Wellington Estates Ph 1d
- Wellington Estates Ph 2a
- Wellington Estates Ph 2b
- Wellington Estates Ph 3
- Wellington Flower Mound Ph 09
- Wellington Of Flower Mound
- Wellington Of Flower Mound Ph
- Wellington of Flower Mound Ph 5A Blk 2 Lot 3
- Westchester
- Westchester Flower Mound 02
- Westchester-Flower Mound 1
- Westchester-Flower Mound 2
- Westchester-Flower Mound 3
- Whyburn Add
- Wichita Chase Ph One
- Wichita Chase Ph Two
- Wichita Creek Estates Ph 2
- Willow Ridge Estate
- Windsor Heights At Bridlewood
- Woodlake Estates
- Woodlake Estates Ph 2
Market Summary
Current real estate data for Single Family in Flower Mound as of Jan 30, 2026
188
Single Family Listed
92
Avg DOM
327
Avg $ / SqFt
$1,359,158
Avg List Price
Property Summary
- Located in the Woodlake Estates subdivision, 1013 Glen Chester Drive Flower Mound TX is a Single Family for sale in Flower Mound, TX, 75022. It is listed for $679,000 and features 5 beds, 4 baths, and has approximately 2,840 square feet of living space, and was originally constructed in 1994. The current price per square foot is $239. The average price per square foot for Single Family listings in Flower Mound is $327. The average listing price for Single Family in Flower Mound is $1,359,158. To schedule a showing of MLS#21163054 at 1013 Glen Chester Drive in Flower Mound, TX, contact your Aaron Layman Properties agent at 940-209-2100.

1013 Glen Chester Drive
Flower Mound, TX












































